
Kaufmann Program Center
KAUFMANN PROGRAM CENTER
ARCHITECTS
Renaissance 3 Architects
CLIENT
Hill House Association
GENERAL CONTRACTOR
Massaro Corporation
PHOTOGRAPHS
Ed Massery
AREA
20500.0 m2
YEAR
2011
LOCATION
Pittsburgh, Pennsylvania, USA
CATEGORY
Renovation
Text description provided by architect.
Designed by Renaissance 3 Architects, the Kaufmann Program Center transforms a celebrated community landmark. This newly revamped community center is a model setting for musical, cultural, and arts performances as well as community events.
More than 70,000 people each year seek help from the Hill House Association, a century-old nonprofit service organization in Pittsburgh’s most well-known African-American neighborhood. The existing building, in dire need of renewal, acted as a community gathering place for residents and civic organizations, and over the years has attracted notable musicians, authors, artists, and statesmen.
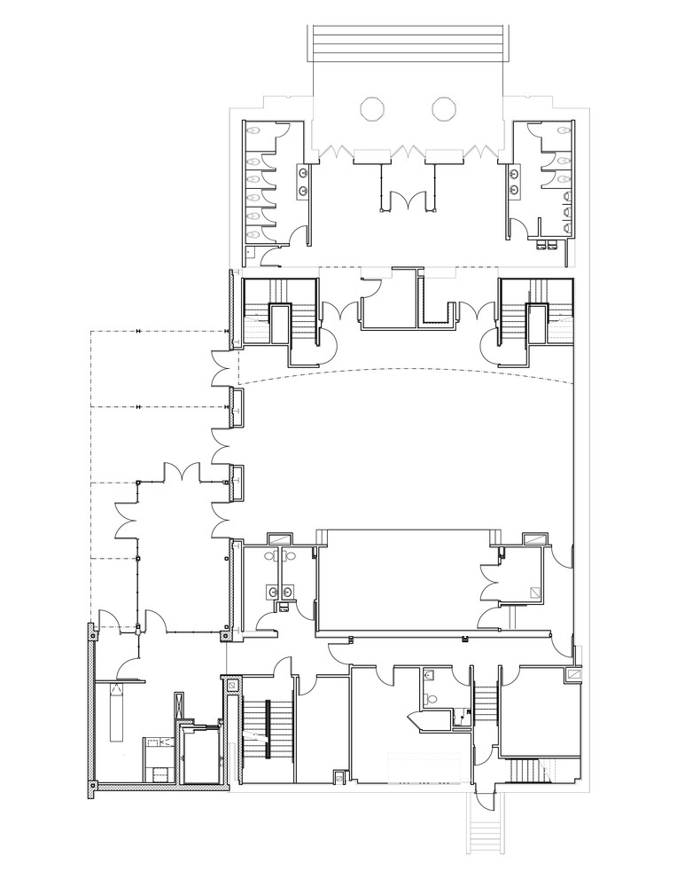
As such, the project entailed an extensive gut of a dilapidated interior space and a comprehensive renovation for an auditorium, classrooms, café, and administration to reconnect the building to the community.
The original building completed in 1928 was designed by Edward Stotz, with classical columns, a limestone exterior, and a long stone staircase. R3A won a 2011 AIA award of excellence in historic preservation by effectively restoring and improving every component of the landmark, including the monumental staircase leading to the lobby and reconnecting the street to the building.
The addition encompasses an outdoor community courtyard and a glass-enclosed café where people can sit, eat, and watch performances in the courtyard. Meeting rooms on the second and third floors were established that provide excellent views of the courtyard. At night, colored, translucent resin panels lit by LED lights light up the public courtyard and façade.
The refurbished auditorium can hold 424 people, including 204 in the old wooden seats in the balcony. The balcony seats are original to the building and have been refinished and reupholstered in elegant red and gold fabric. The new seats on the first floor are movable to effectively modify the space.
Not only does this venue serve the community with its redesigned state-of-the-art performance space with improved acoustics and seating, it also allows the community to enjoy outdoor events through the amphitheatre seating within the redesigned public courtyard.





















