Architecture Research Center
ARCHITECTURE RESEARCH CENTER
ARCHITECTS
Petros Konstantinou, Yiorgos Hadjichristou
PHOTOGRAPHS
Agisilaou and Spyrou
YEAR
2011
LOCATION
Egkomi, Cyprus
CATEGORY
University
Text description provided by architect.
The University of Nicosia decided to accommodate the Architecture Department- ARC Architecture Research Center in an existing shoe factory of the adjacent Engomi industrial area.
The choice was part of the strategy of the University to expand the campus in the neighboring industrial zone, a vital decision for the regeneration of the area!
The needs of the architecture department, the restrictions of the existing concrete structure and the low budget defined the approach of the design, which was thoroughly filtered by the weight of the responsibility for the identity of the ‘Architecture Research Center’:
this is the sixth year that the Architecture Programme has been running in the Architecture Department of the University of Nicosia and it already claims to be very of high quality, very Progressive, Experimental with critical thinking approach.
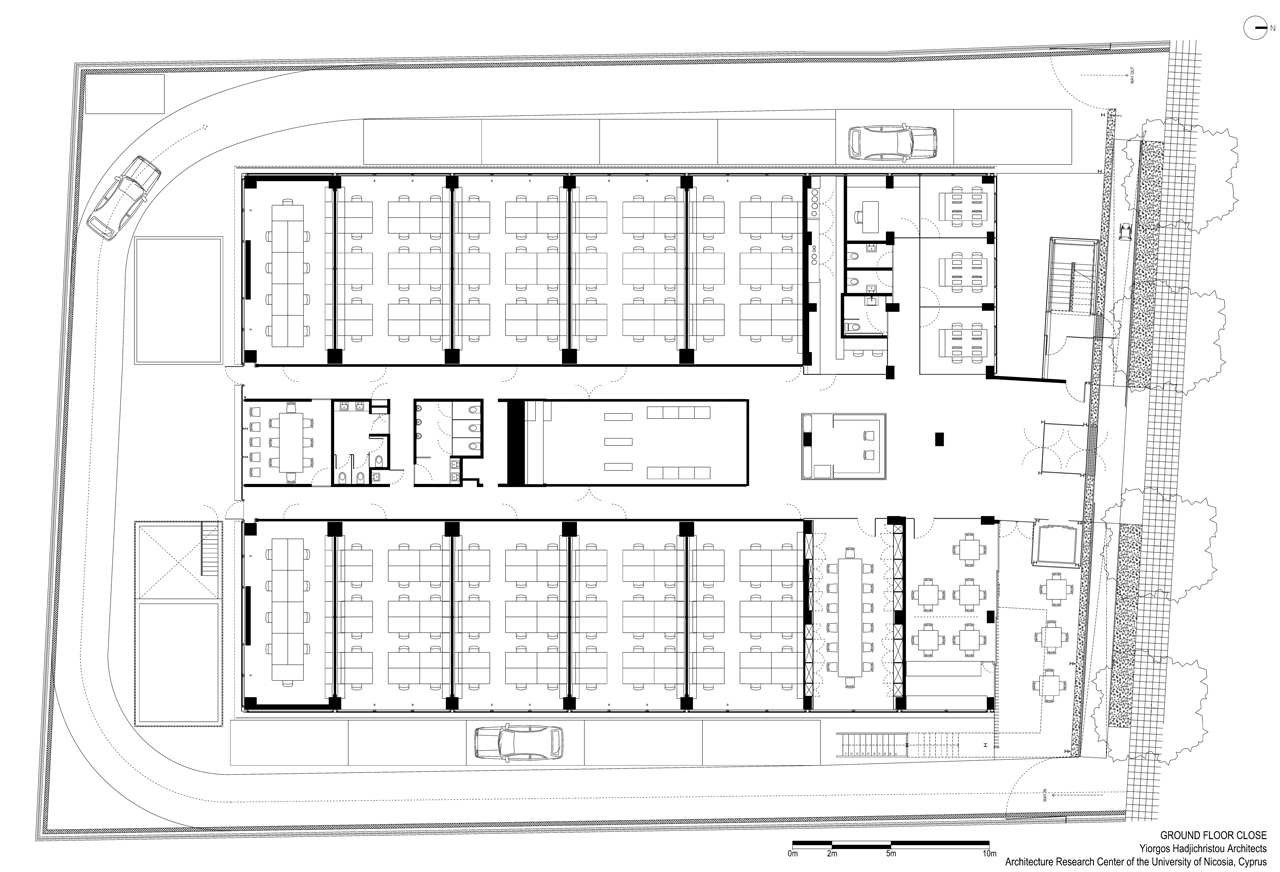
The conversion of the building should respond to the increased needs of the ARC which demanded various sizes of studio spaces, meeting-lecture-exhibition spaces, workshop, offices, computer labs, cafeteria etc.
These requirements led us to organize a very flexible interior space: the industrial, high ceiling space may finally keep its original, completely open plan character or may be divided up to a variety of studios, amphitheater, lecture and exhibition spaces when it is needed through the sliding dividing panels.
The arrangement of the panels can provide each time different and diverse spatial conditions, while they serve as well for the acoustic needs and as surfaces for the pin ups of the students work during reviews and exhibitions.
The central amphitheatrical part serves as a lecture, exhibition and event space, while it may be the main recreational, resting area during various hours of the day.
It leads to the roof of the building from where winter sunlight may enter the central part of the building, while it can be used as an organic link to the future vertical extension of the ARC.
The 2 floors of the northern existing part of the building accommodate the entrance with the reception’s ‘box’, the cafetreria that ensures the everyday warm welcoming and the livelihood of the front area of the building, the offices , the computer lab.
The vertical communications are organized in the north extension of the building.
The envelope of the building is treated with polycarbonate panels in various soft coulour tones which transmit a controlled, pleasant light condition in the interior of the building.
It is planned to be accomplished in the near future with a shading proposal with mesh and climbing vegetation.








































