
Flowing Lake Residence
FLOWING LAKE RESIDENCE
AREA
2500.0 m2
LOCATION
Snohomish, United States
CATEGORY
Houses
Text description provided by architect.
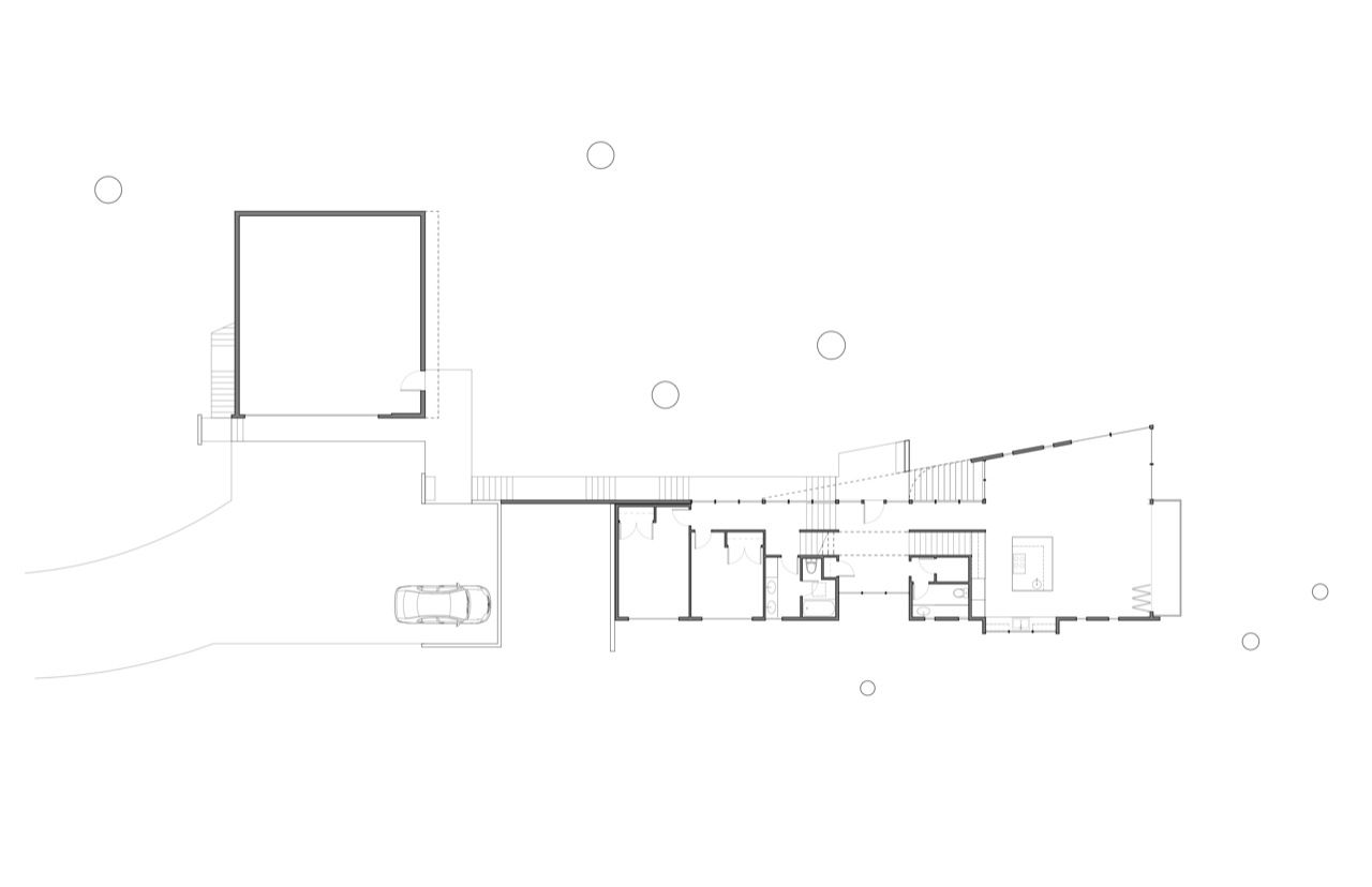
The small and narrow lot extends dramatically down a steep slope to beautiful Flowing Lake in Snohomish County, Washington.
Giant fir trees occupy the western half; the eastern half was marred by the previous removal of a fire damaged cabin.
David Vandervort Architects' challenge was to create a home for an active, young couple which preserved the trees and the remaining native landscape while extending toward and maximizing views of and access to the lake.
The solution was to first establish a path to the water alongside which a house was then placed.
The path begins at an auto court with its detached garage/office.
It then descends past the bedroom wing alongside the giant firs to mid-slope where a glass corridor/entry blurs the line between interior and exterior.
From here the living areas open and cantilever toward the view, its glass façade maximizing both openness to the lake and the limited quantity of light.
The upper level Master bedroom with its roof terrace hovers amongst the trees.
These lake related portions of the house are all embraced by the wood clad wall providing privacy to the neighbors and focusing attention to the view.
Downslope from the entry, as the house bridges over the path, is a covered porch, then a bunkered patio and finally the lake edge itself with its restored wetland.
The materials of the house are honest and natural. This allows the house to meld with the natural landscape so that by day it is difficult to isolate when viewed from the lake, while at night the home glows reassuringly from within.






















