
S Cube Chalet
LOCATION
Kuwait City, Kuwait
CATEGORY
Houses
The owners -two brothers and their sister each with their own families- want to continue enjoying the same exceptional environment in which they grew up, but with complete independency and privacy from each other.
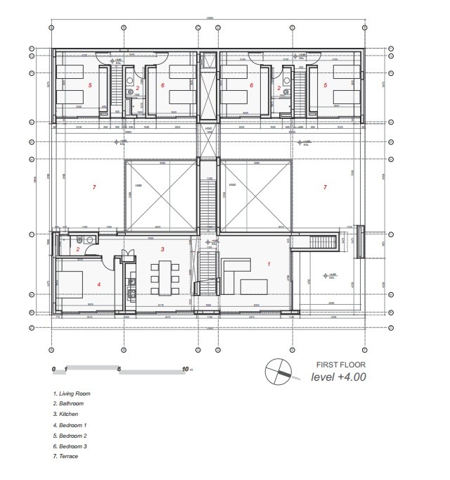
For these reasons, the design of these three small houses calls for a duplicated program, which maintains privacy, while benefiting from outdoor areas and sea views, by the use of several terraces.
ARCHITECTURAL SOLUTIONS PROPOSED BY AGI
In order to create private and independent houses for each family -comprising of three young couples with two small children each-, AGi architects have divided the plot into two units, composed of two houses that are mirror images of each other, named S2 and S3.
These units are separated by a staircase leading towards the third house, located at the higher level.
The third house is positioned on top and across from the two residences, enjoying a large roof terrace with direct views towards the sea.
Each of the three houses enjoys an individual outdoor area that is open to the sky, privacy from its neighbor, and extended sea views.
The highly dense program in the intertwined houses is manipulated to create outdoor spaces which harvest the prevailing winds and enhance their circulation within the courtyards, allowing people to comfortably reside in them.
The building is carefully situated to protect its exposure to the sun on the southern façade, whilst increasing shaded space on the northern side to frame views out to the sea as well as create a pleasant outdoor environment.
The outdoor spaces on the ground floor and the roof terrace of the third house on the upper level are the main distinguishing elements and spaces of this project; from which the three houses are organized around them.

















