
Block House In Melbourne
BLOCK HOUSE IN MELBOURNE
Taylor + Reynolds: Lauren Taylor, Jeremy Reynolds
ARCHITECTS
Taylor + Reynolds: Lauren Taylor, Jeremy Reynolds
PHOTOGRAPHS
Patrick Reynolds
AREA
554.0 m2
YEAR
2012
LOCATION
Melbourne, Australia
CATEGORY
Houses
Text description provided by architect.
Completed by Taylor + Reynolds in June 2012, this family home is a homage to the many houses built in the leafy inner eastern suburb of Kew during the 60’s and 70’s.
The selection of natural, unadorned materials – particularly concrete blockwork – set the building modestly into the site and street.
Through contrast in colour and texture, the facade is horizontal by nature, reading as two interconnected bands. The first floor, rectilinear in form and clad in dark stained Western Red Cedar is set upon a secondary form consisting of concrete blocks and render to match.
A simple rectilinear form is transformed into a dynamic and exciting living space through the interplay of materiality and detail, light and shadow, solid and void.
Texture within the block laying pattern is a significant element in the whole; a typically flat and utilitarian material is transformed, becoming a sculptural element delineating the homes’ spaces.
Light dances across the blockwork accentuating the depth of the pattern through the movement of shadow, creating a feature wall. Timber oak flooring is juxtaposed against the concrete blocks, establishing a sense of warmth and lightness within the home.
The staircase is sculptural by nature, a prominent feature of this luxury home. Timber treads appear to float between the handcrafted black steel profile.
The bridge, an extension of the staircase, spans the void and allows light to penetrate on either side creating a quality of openness.
Practically, the bridge creates a sense of privacy within this family home, connecting yet separating the master bedroom from the children’s rooms.

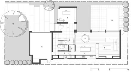
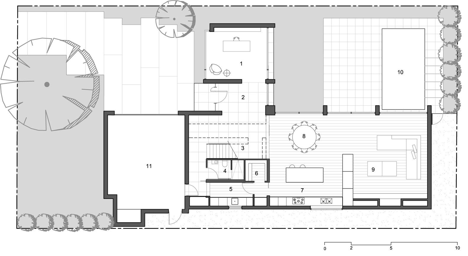
The design is open plan and the living spaces flow freely from one to another. Function is defined through changes in level and materiality.
Upon entry, the tiled surface steps down to the kitchen and living room which are delineated through the use of joinery.
A full height unit has dual functionality; as an element of the kitchen. Behind smoked mirrored glass the pantry, fridge and bar are concealed.
Meanwhile, from the living room, the unit is clad in dark timber veneer and again screening the TV wall unit. The house is orientated to the north with the living area opening out onto the pool and garden creating a wonderful entertaining zone.














