HOUSE 39
YEAR
2012
LOCATION
Curicó, Chile
CATEGORY
House
Text description provided by architect.
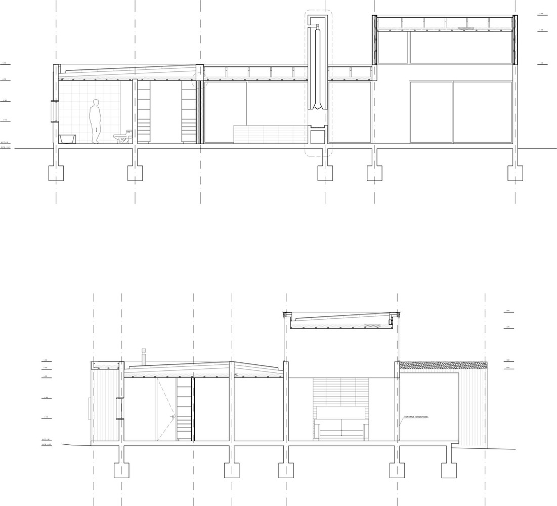
Casa 39 (House 39) is a 255 sq m house with a simple floor plan for a family that needs three bedrooms.
Additionally, a small living room, which could be turned into a fourth bedroom service or guestroom in the future. Is set slightly farther away from the kitchen area.
The house is nestled in a eucalyptus forest to the east of Curicó in Chile’s seventh region.
During the construction process, we sought to preserve the forest as much as possible,which implied building the house on a site with substantial permanent shade
As a result, a central feature of the design is a 5X2.5 m interior courtyard, which serves to distribute the space and ensure the common areas are well-lit.
Moreover, the living room was raised from a height of 2.55 m to 5.1 in order to both take advantage of the natural light and create a view of the forest canopy.
The southern face of the house is hermetically sealed off from its immediate neighbor by a black slate wall, which opens towards the east, where most of the vegetation is located.



























