Ravenswood School For Girls
The Mabel Fidler Building forms a new entry and centre for learning at Ravenswood School for Girls and functions as the central hub within the school environment.
The design of this building was initiated through a master planning process focused on creating an attractive, imaginative and stimulating learning environment.
The Mabel Fidler Building is designed to be in scale with the existing school buildings and be seen as a modern insertion into a campus of varied buildings.
Site accessibility due to level changes and difficulty of way finding has always been an issue for the school, along with the useability of external areas. The Mabel Fidler Building project is designed to address these issues.
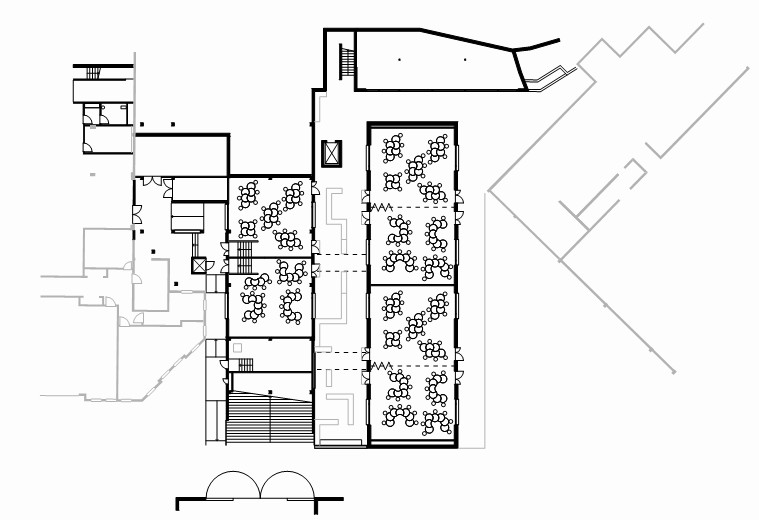
A new main entry to Henry Street will aid site security; currently numerous entries do not allow ease of monitoring school visitors. The new entry courtyard at the heart of the proposal provides an external space for the school community, partially covered while providing maximum usability. Administration and the new Junior and Senior libraries address the courtyard along with the new café that links the courtyard to the oval.
The lower levels are designed to provide a solid base to the building, reminiscent of the masonry materials used in the existing campus.
The upper levels are designed in steel with a translucent cladding and significant cantilevers which appear to hover over the base, providing weather protection and covered outdoor areas.
A large canopy roof floats over the buildings that front the oval, creating a new urban scaled verandah to the major public space of the school and allowing the building to be read from the Pacific Highway across the oval.
The building aims to bring together both passive and active design solutions to sustainability and allow the initiatives to be utilised in the education program for the girls. The building has been designed as a mixed-mode building that is able to operate completely with natural ventilation. Conversely, on extreme weather condition days, the space can be air conditioned.
In order to achieve this, the building features a double-skin façade that creates a cavity that in winter is kept closed to retain heat and in summer opens automatically to release heat.
The scheme provides much needed vertical and horizontal connectivity for the school. The proposal unifies both landscape and environmentally sustainable design principals. The facilities allow for best practice and ensure the school’s philosophy of flexibility and an individual approach to teaching and learning.

















