
The Pool Shophouse
ARCHITECTS
Farm
PHOTOGRAPHS
Jeremy San
AREA
366.94 m²
YEAR
2012
LOCATION
Geylang, Singapore
CATEGORY
Residential Architecture
Text description provided by architect.
The Lorong 24A Shophouse Series was conceived as a collection of architectural experiments and showpiece for each architect.
FARM, in collaboration with KD architects were thrilled to be invited as one of the 7 studios involved.
The conversation with the existing shophouse started with the intention to read the ‘new’ not as a ‘rear extension’ but as an ‘insertion’.
We wanted to explore the spatial opportunities within such a configuration while heightening a unique experience inherent within the spatial structure of a shophouse.
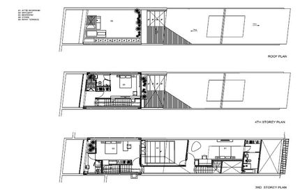
The monolithic lap pool on the first storey emphasizes the linear typology of the space, as it guides one’s experience from the front to the rear.
Extending this idea of linearity is the monolithic volume at the rear which houses the private quarters on the upper levels.
One experiences the continuity of space through a series of stairs that loop through the shophouse. Central to this continuous loop is the skylight that marks the vital interface.
It bathes this narrow linear space with resplendent sunlight, and visually connects different parts of the house.
Through these spatial and formal gestures, the dialogue between the old and the new is constantly questioned and new discoveries revealed through the shift in geometry, height, volume and material.



















