
Refurbishment of Deusto University
ARCHITECTS
IDOM
AREA
1012709.0 m²
YEAR
2012
PHOTOGRAPHS
Aitor Ortiz / Courtesy Acxt
STRUCTURE
Mar Mayo, Miguel Ángel Corcuera, Gorka Uría
ARCHITECT IN CHARGE
Diego Rodríguez Segura
PROJECT MANAGER
Pilar Mateo Martínez
PROJECT ARCHITECTS
Helena Sá Marques, Marina Ajubita
LOCATION
Bilbao, Spain
CATEGORY
University
COST MANAGER
Jorge Lores
Text description provided by architect.
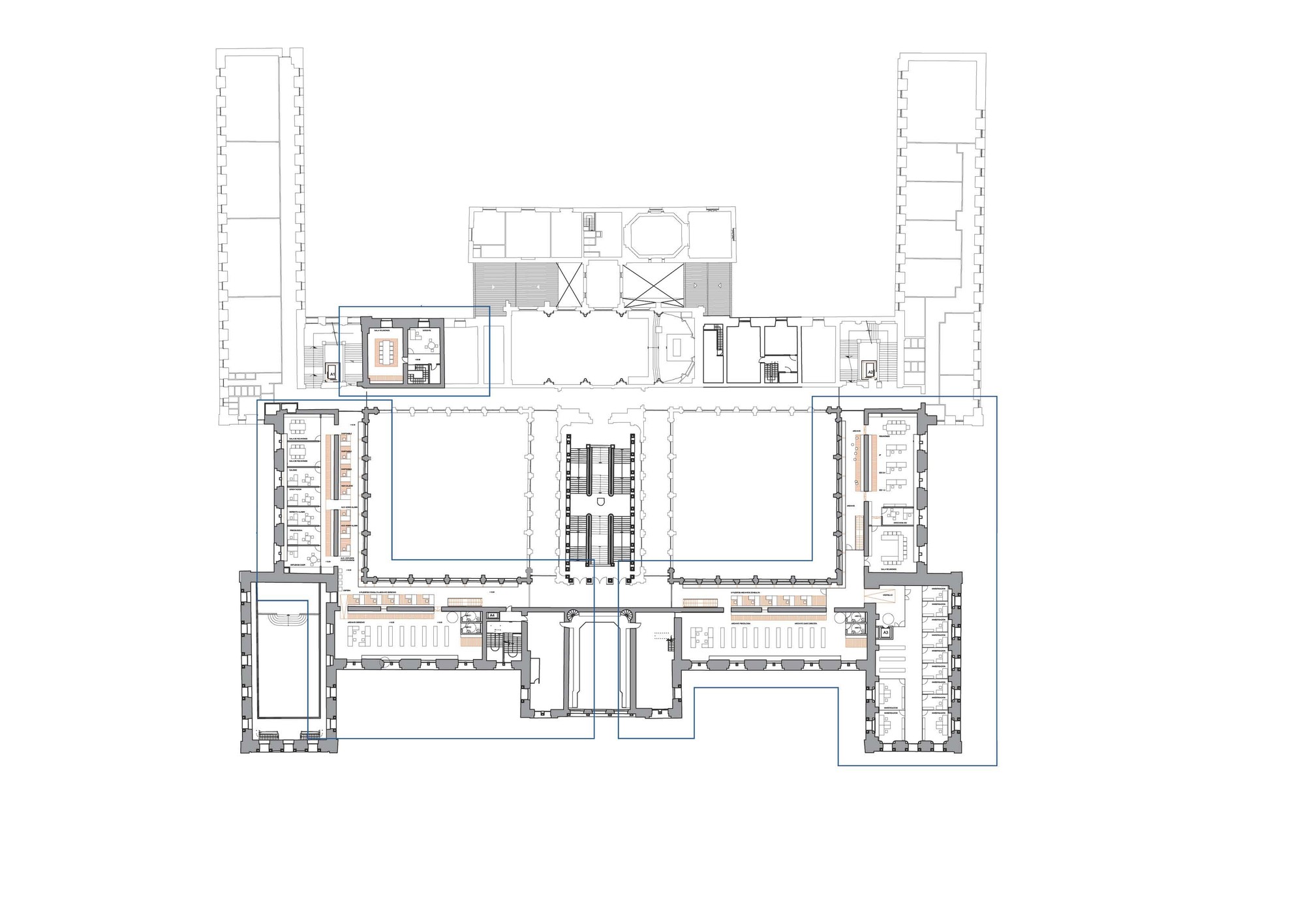
The University of Duesto decided to renew its Central Building, known as "La Literaria" (The Literary). This aim of this refurbishment project undertaken within the framework of the Strategic Plan (2011-2014) has been to achieve professional excellence while offering a better service to students and society as a whole.
ACXT was awarded the contract for the project. The works commenced in 2011 and have recently been completed.
The main objective of the architectural design was to respect and enhance the spatial, aesthetical and functional qualities of the original building, designed by the architect Francisco de Cubas in 1886, and declared a monument of cultural interest.
The decision to renew the central building has meant the restoration of the galleries on the noble floors, as a fundamental element of reference, coupled with the symbolic nature of the space of the cloisters and the semi-interior space that has been achieved by the construction of two new ceilings covering the courtyard; making this, the new nerve centre of university life on the campus of Duesto.
















































