
Gotland Summer House
YEAR
2012
LOCATION
Sweden
CATEGORY
Houses
Text description provided by architect.
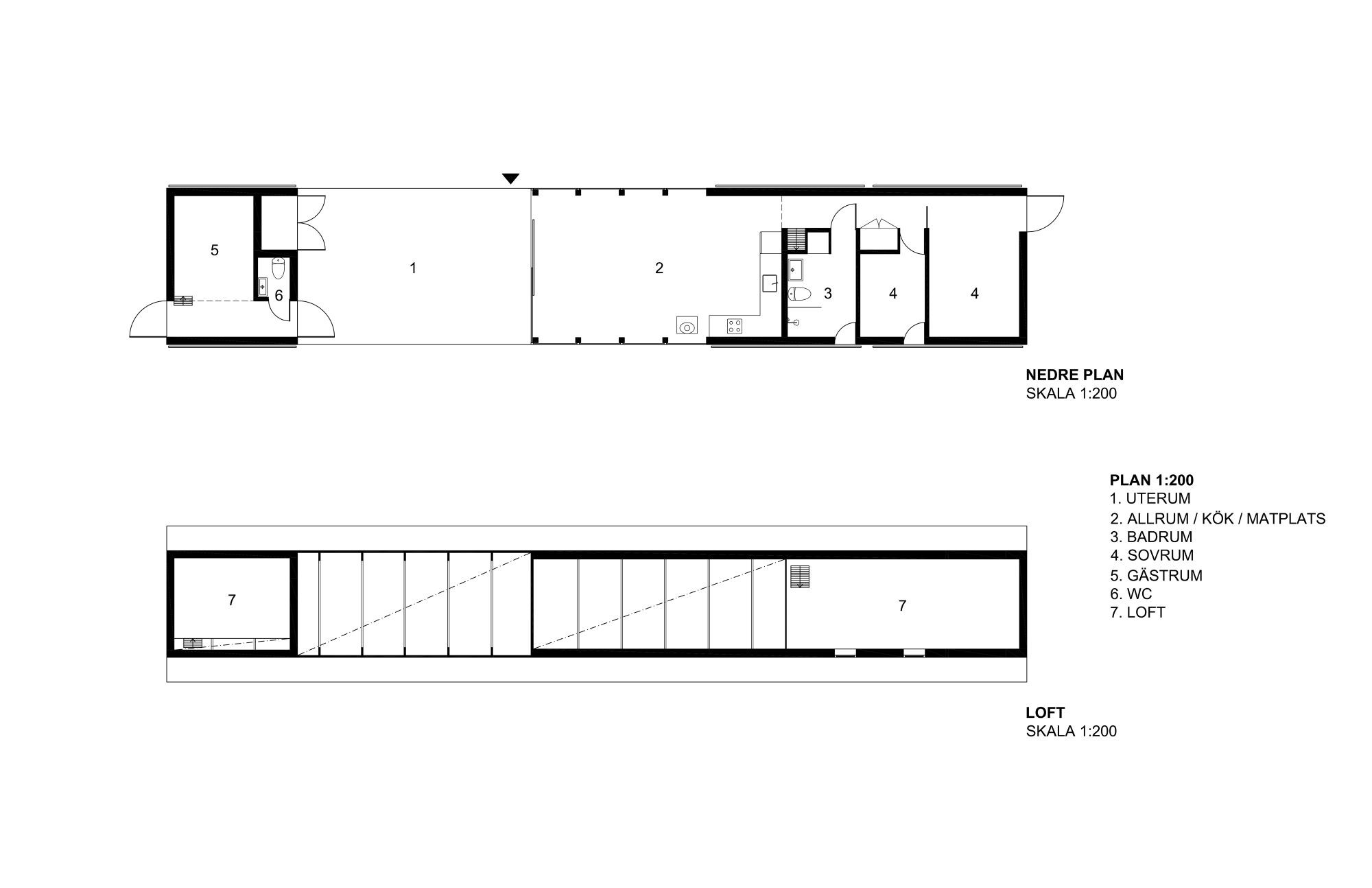
A summer house for a young family. The site on the Swedish island Gotland in the Baltic Sea is surrounded by open fields to the north and low forest in the south.Local building traditions are important in this region, as well as for the architect and client.
The slim volume invites light into the house and makes nature alwayspresent.
A tarred pine roof adds character to the sheer volume and spans the private bedrooms and bathroom, the indoor and outdoor living room and the guest room. In time, after a number of tar treatments the roof and the façade will have the same colour.
Walls, floors, ceilings and kitchen are made of local pine.The outdoor living room is designed for the unstable Swedish summer climate with rain, wind and sun. Exterior sliding shades stop the wind, protects against sunlight and is used to close the house.











