ARCHITECTS
Cie + Mayu Architects
LOCATION
Kaohsiung City, Taiwan (Roc)
PHOTOGRAPHS
Yu-lin Chen, Guei-Shiang Ke
CATEGORY
Theater, Gallery
AREA
36.0 m²
PROJECT YEAR
2012
Text description provided by architect.
Dadong Art Center is located in Kaohsiung City in the economic center of southern Taiwan.
Connecting the dense context of historic Feng-Shan District, a major park, and the Feng-Shan River, the Art Center creates a sequence of public spaces by means of membrane-covered interstitial open space between four major volumes- theater, exhibition hall, art library and the education center.
The intensive use of public space by activities such as dance, Tai-Chi and various games characterizes outdoor use in Taiwanese cities. A membrane roof creates a shaded condition for a wide range of activities.
The roof shape prevents against extreme climatic conditions such as Typhoon, periodically strong rain and high summer temperature. Wide holes in the roof guide the water to inner springs. Warm air rises to the top roof openings generating a fresh inner draft.
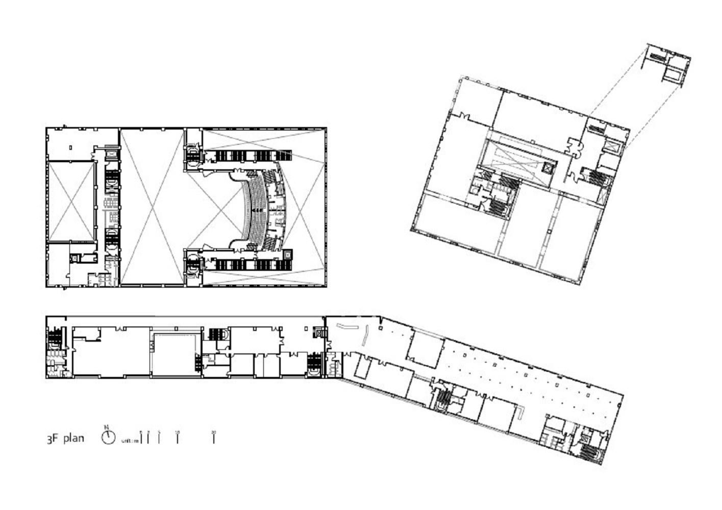
A 900-seat theater and a small rehearsal hall, cladded in wood and perforated metal, are center pieces of the program.
The theater is designed as a wood volume contained inside the X-shaped concrete facade. The facade of the whole project is homogenous, yet implies the program inside by subtle changes in density.
In order to achieve optimal acoustics in both music and theater use, the ceiling of the auditorium is adjustable according to music and theater modes. Sound absorption materials are also retractable behind the wood lamella.


































