ARCHITECTS
Qarta Architektura
LOCATION
Prague, Czech Republic
CATEGORY
Housing
AREA
2157.0 m²
PROJECT YEAR
2012
PHOTOGRAPHS
Marek Novotný
Text description provided by architect.
The site is located in Prague 6 Bubeneč, on the street of Charles De Gaulle.
The definition of open spaces - distances from surrounding homes is designed, so that these spaces were equally placed and thus preserve as adequate privacy for residents of existing homes and for future residents of the proposed new building.
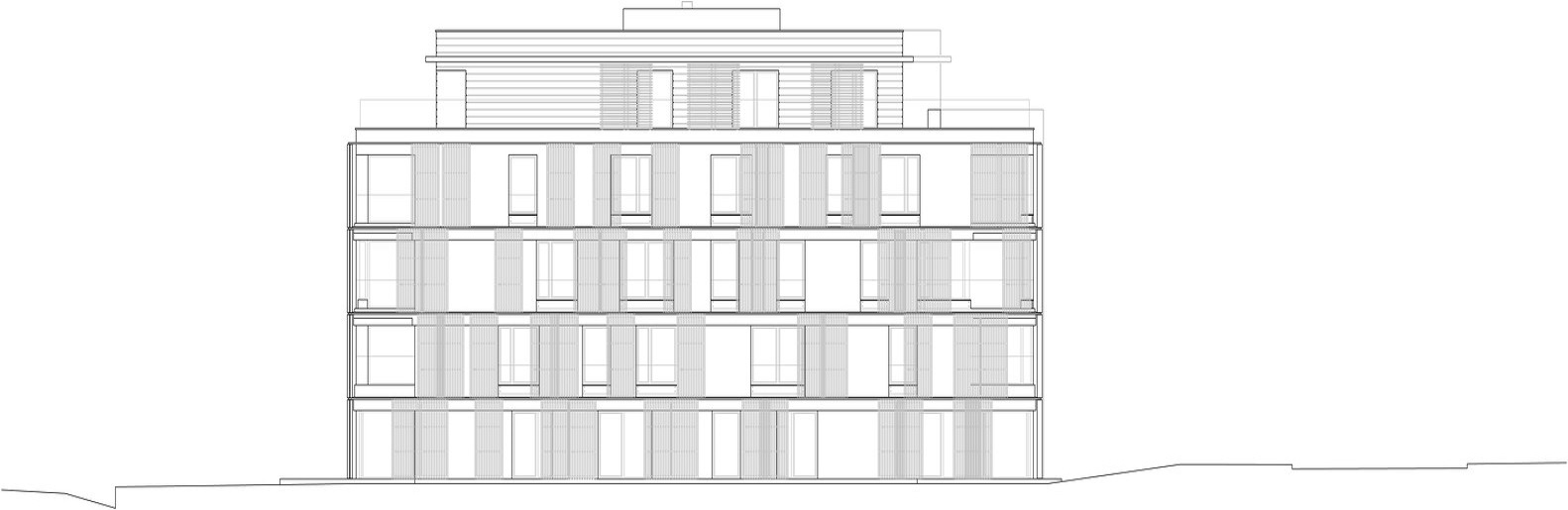
The house is divided into two volumes (the branches of "L" shape), which are separated by a common communication kernel. The first volume is airy and movable.
The facade is made of sliding wooden sunshades and thanks to them may constantly change. The second volume is contrary solid, firm, and is made of sand stone. The proposed building is five floors high with basement.
Given the nature of the use and its inhabitants is calculated in communication areas with higher space requirements and user favorable parameters - such as gradual steps, in case you need double lift, sufficient daylight, etc.
On the ground floor are located physicians' offices, waiting room and facilities for visitors. In the last floor is an apartment complemented by terraces. In the basement are located parking spaces and technical background of the house.





















