This retreat house in Atlixco is located 30 km from the city of Puebla. Atlixco has an ideal weather for summer vacations and weekends. The user had two main restriction priors the designing of the house.
It had to be a one-plant construction and a house that could be used only by two persons or simultaneously by three families of four or five members each.
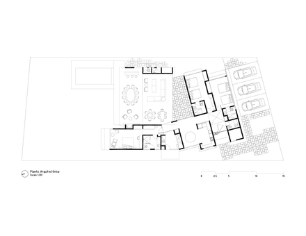
The house was then conceived in two sections. The first section recognizes the diagonal street form. In this section are located the parking, main access, kitchen, machine´s room and the two guest´s rooms. The access to the second section is through the breakfast area aside of a triangular patio.
This patio allows a rotation of the house and creates the second section. The second section contains the public area. This grounds an important value for space and location. Familiar reunions and hosting guests will take place in it.
The design of an open area connects visually the space from the triangular patio to the green area. A series of steel beams support 10.5 meters open space in the larger side.
The main bedroom is located in the second section with a view to the green area. The bedroom is located in the same line of the kitchen, services and principal access.
These features can focus the activity of a couple of persons in an area without having to intervene other spaces in the house.
It was very important to achieve the most green areas possible in order to promote the familiar gathering using the construction and the function of a family retreat of the house.
The building then was concentrated in the front making a façade very private and almost hermetic denying any activity. The other façade has a high percentage of transparency to the green area.
Generating side façades effects when creating the ventilation of the internal areas.. The residential complex required slabs with a 70% slope. In this case the public area plaque has the greatest slope in the side of the terrace.
The guest room’s plaques slope in the wider side up to the main façade. Slabs meet on their lowest points in the triangular patio.

















