Gallery of Minerals and Atelier
GALLERY OF MINERALS AND ATELIER
Three.ball.cascade. Architecture Design Office
YEAR
2012
LOCATION
Yokohama-shi, Japan
CATEGORY
Gallery
AREA
109.52 m²
SUMMARY
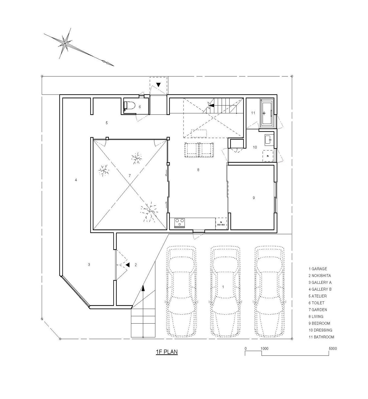
This architecture is a Atelier with a gallery exhibit of minerals hobby.
Supposed to use a second home, we asked to spend time hobby, and it is a place where people gather.
THOUGHT
Among a variety of site conditions and given that you are always considered to be important when we designed, how "It is quiet" "It has a beautiful space, it is a form of" "It is comfortable" It is the fact that you realize.
This site is located on a major road, it is about how noise and interference from others in particular of whether the measures were important.
SITE ALONG THE OUTLINE
Buildings disposed along the outer grounds, open space in the center can be on the relationship between building coverage.
Designed as an open space courtyard this, consider the angle of incidence of the light, we have to act as sound barrier for the road.
Effect was greater for the sound design.
When looking at the sky in the courtyard in a quiet place like that, I will be feeling relaxed and spacious.
LIGHTHOUSE
This site is a part of the land that is for sale about 35 years ago.
Time for rebuilding is coming around as well residence, Near the house of the future, is expected to continue to be, such as rebuilding or renovations this architecture as a benchmark.


















































