Casa Alta
ARCHITECTS
AS/D Asociacion de Diseño: AS/D Asociacion de Diseño
LOCATION
Estado De Mexico, Mexico
CATEGORY
Houses
AREA
338.0 m²
PROJECT YEAR
2012
PHOTOGRAPHS
Rafael Gamo
MANUFACTUERE
Cosentino, Cuprum
Text description provided by architect.
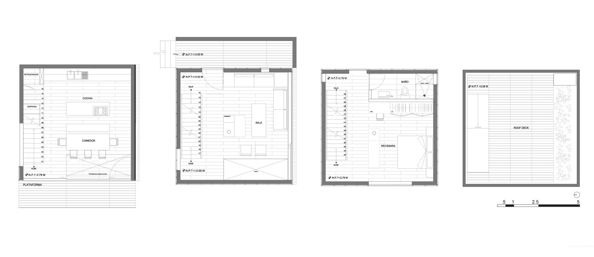
Located on a steep slope within a 1,500 square meter plot with magnificent views to the valley, the main structure of this weekend house consists of a 6 m by 6m module in three levels with just 108 square meters and a roof deck overlooking the valley.
The structural walls made of striped exposed concrete make this house a monolith inserted in a steep topography highlighting discreet light penetration, as well as directed views towards the garden.
A staircase parallel to the site guides the user from the entry level to the outdoor platform below, the same way in which the house is interconnected from the lower level to the roof garden.
The site presents a difference in level of about 16 meters in one direction, offering magnificent views of the surroundings; the house is inserted at a specific level from which it optimizes different entry levels and the integration of the exterior space.
A clear connection is generated throughout the 3 main levels of the projects: entry level, the levels of the house and the lower level platform containing the pool.
The project is conceived as stacking program enclosing different uses on specific levels of the site.
The house works as a vertical block organized by vertical circulation through a stacked staircase which connects the user to different levels and program having on the lower level the kitchen with dining area, the intermediate level or entry level the living room, the top level the bedroom and full bathroom, and above that the roof deck.
The directed views are key to the project as per orientation of each level and space interconnection on the inside.
A platform on the lowest part of the site becomes the common space for relaxation, ending with the landscape intervention and programmatic experience.
This platform of 200 square meters consists o f a swimming pool, grill, outdoor dining tables, and lounge spaces, with views the valley as well as the river.
The design of the ventilated facade is conceived with the idea of somehow printing an abstract image of a tree, just as if the house would camouflage with the many existing trees from the site.
The façade evolves from the idea of digital pointillism where the image of a tree is digitalized with the same technique of the impressionist paintings, where the user is able to see the full image from a distance but as one gets closer it becomes a constellation of pixels which gives a unique texture to the house.
This is achieved with 232 Trespa panels from which 40% are perforated using CNC technology for the fabrication and precision and placed on an aluminum sub-structure.
Casa Alta, is a subtle intervention to the site, context and vegetation, with a minimum footprint to allocate the basic needs for a weekend house.
A house that becomes and observatory from the inside and a house of intervention from the outside. A house to enjoy the outdoors.
























