D house in France
FLOOR
stone, cork
LOCATION
France
CATEGORY
Houses
COLLABORATORS
Arnaud Lacoste / Jérôme Vinçon
PHOTOGRAPHS
Daniel Moulinet
FURNITURE
Chestnut, Laminated Veneered Lumber (stairs
DIMENSIONS
L 16.10m x l 9.20m x h 6.00m
HEATING SYSTEM
Geothermal Heat Pump With Vertical Collectors
FACADE
High Insulation Glass Surfaces, Chestnut Cladding
STRUCTURE
Concrete Walls, Steel Frame, Crosswise Laminated Timber Panels
Beached on the estuary’s banks, where fresh waters meet rising tides, the D house cultivates contradictions.
It can be either a shelter or a reception place, an intimate space or the place for partying. It is driven by opposite currents and its character varies depending on its occupants’ moods and natural cycles.
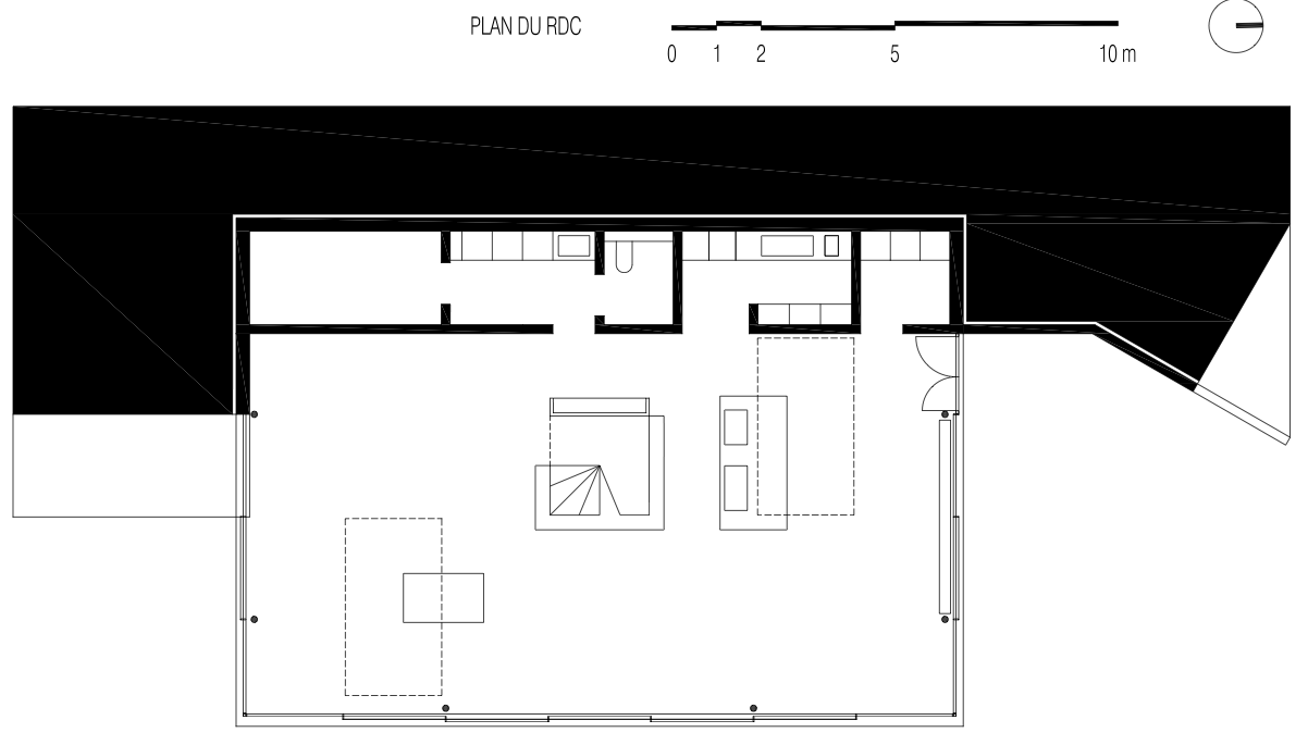
When discovering the house, the first thing we catch sight of is the overhanging section. Thanks to a retaining wall, a hollow space appears below.
Life is organised here around the hearth, the stairs and a central cooking island. All around you, panoramic views of the undergrowth and beyond the river are offered by the upstairs floor.
Wells of light passing through the upstairs floor invite the sky into this blended landscape. On the ground, the stone disappears, the windowed angles fade. We live inside the wood.
Upstairs, a succession of small spaces creates a completely different hushed atmosphere. We cross a series of adjoining rooms, lit through wooden trellises which filter the view and dim the light.
From the bedrooms, you can access outside closed-in spaces to get fresh air or sunbathe above the living-room. Nature is all around and envelopes you.
In very different ways they both adopt the same strategy of camouflage: the reflections of the leaves on the glazed surfaces, or the cladding made of untreated planks which imitate the surrounding nature and whose texture merges in the woody environment.
Sophistication and rusticity, abstraction and materiality, the architecture of the house plays with dialectical sets, just like a landscape drawing its strength from the confrontation of the elements.






























