
Dollar General Distribution Center
ARCHITECTS
Leo A Daly
YEAR
2012
PHOTOGRAPHS
Bill Baxley, Matthew McFarland
MANUFACTURER
Kalwall®
PRODUCTS USED IN THIS PROJECT
Curtain Walls
LOCATION
Bessemer, United States
CATEGORY
Factory
Text description provided by architect.
Chosen by Dollar General to design a distribution center and employee hub that is as practical and efficient for trucking as it is amenable to comfort and collaboration for its employees, the design team at LEO A DALY’s Minneapolis office created just such a place.
“Dollar General wanted the architecture of its workplaces to do more than support the bottom line,” said Bill Baxley, LEO A DALY Minneapolis design director.
“They wanted this facility to contribute to the well-being of employees—to give them pride and ownership in what they accomplish every day. So our design focused on encouraging that perspective.”
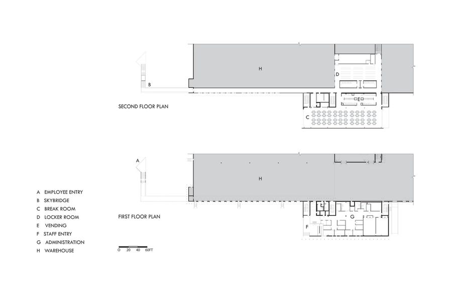
The result? A million-foot campus on 106 acres in Bessemer, Ala., that includes six buildings: a dry storage warehouse, administrative office and employee hub, a dispatch office and truck maintenance facility, a receiving truck concourse guardhouse, a shipping truck concourse guardhouse, and a pump house and fire protection reservoir.
The employee hub, designed to facilitate employee interaction, safety, and comfort, includes roomy locker rooms and restrooms, a vending area with ample food-heating capabilities, 20 commercial-grade refrigerators, and a 600-seat cafeteria/break room with a porch that accommodates gas grilling.
Southern light—diffused via translucent glass windows—endows the room with a gently sunny and always comfortable ambiance.
The break room’s substantial profile—together with a sleek elevated sky bridge stretching from one end of the facility to another—balances the enormous warehouse structure’s scale.
Throughout the facility LEO A DALY designers used materials that reflect those commonly found in the manufacture of trucks and transportation.
Pre-cast concrete panels embedded with a tire tread design climb the walls of the warehouse, patterned steel often seen on truck tailgates serves as corridor walls, and oriented strand board ceilings mimic the look of pressed fiber plywood that lines semi-truck storage containers.
Even the facility’s logo wall was modeled after the exterior signage on Dollar General trailer trucks.
“We chose LEO A DALY because their design reflected an understanding of our mission and vision,” said John Flanigan, executive vice president of the firm’s global supply chain. “The team interpreted our need for a hardworking and employee-centered environment in imaginative and practical ways.”
The Minnesota chapter of the American Institute of Architects recognized LEO A DALY’s original design with a 2012 Honor Award. AIA Minnesota award jurors said the building “celebrates the hard work of the employees. It transcends the sum of its parts and comes together in an efficient, yet magical way. This proves that in the right hands, even a Dollar General can be sexy and fun.”

















