
Cotacachi House
LOCATION
Cotacachi, Ecuador
CATEGORY
Houses
Text description provided by architect.
A couple from the Caribbean seek retreat amid the northern Andes in a small town, two hours north of Quito, an orchard site in a valley 2470 meters above sea level, between the Imbabura and Cotacachi mountains, to the east and west respectively.
The couple needs a design proposal in 4 days before going home, or they will sell the site: we have to design a house without knowing the site and after meeting the couple for two hours.
Based on our experience for our own house, we apply the same strategy:
a universal scheme that can work for any site condition, a house whose spatial limits will be the two mountains we know dominate the valley, the abstract glass house as a starting point.
But we are also convinced that the universal and abstract need to become specific in order to work, specific to topography, weather, use, etc. but there is one aspect that makes architecture specific that interest us above all, construction and materiality:
building with local materials and techniques will root abstraction in its place, and also determine form and type, the courtyard house.
Building with earth in a highly seismic region implies you have to work with very strict geometric rules that allow for very little variation from a type; this would not allow the house to be limited by the mountains, or vary to become more specific to topography, site geometry, trees in the orchard and actual needs of use by the client.
Strictly applying local construction techniques would only guarantee apparent continuity, not real formal implantation.
We had to determine a way to make the universal specific, intensifying the conditions of reality we identified as essential through abstraction and materiality; how to make the house of the valley and mountain range, not just an object placed in and limited by them?
Understanding typology as a universal tool, modified in its formal traits by materiality, provided us with a clear and adaptable set of rules to achieve specificity.
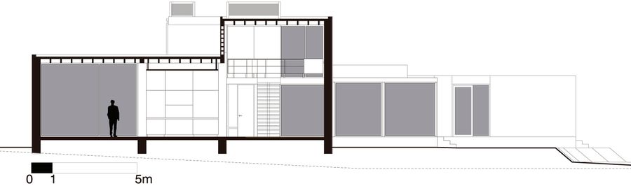
The traditional courtyard house, built with loadbearing earth walls for the first story and wooden second stories and roofs, is abstracted to a courtyard type defined in this case by three bays determined by use:
a public bay shared by the couple and guests, a private bay for the guests separated by the courtyard, and a third bay atop the other two for private use by the couple.
This typological variation of the traditional courtyard type, through understanding the modern bi-nuclear house, combined with the properties of rammed earth construction and the layering of lighter complementary materials, strive towards a synthesis of the local and the universal, towards continuity through variation.

































