
New Cervelló School

NEW CERVELLÓ SCHOOL
BCQ Arquitectura
ARCHITECTS
BCQ Arquitectura
LOCATION
Cervelló, Spain
CATEGORY
Schools
AREA
2974.0 m²
STRUCTURAL CALCULATION
Eskubi-Turró Arquitectes
COLLABORATOR ARCHITECTS
Jordi Sánchez, Gonzalo Martínez
PROJECT YEAR
2012
Text description provided by architect.
This is a friendly school that encourages domestic and family treatment among students and teachers.
The horizontal and serene buildings sit naturally in the field. The building aspect of clean form reflects the clarity of their role: they are the platform for teaching.
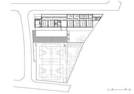
The new school is located at the end of the street Santa Anna, one of the main streets of the town, bordered by Cervelló River.
The building, with the main entrance from the street, stood aligned with the street, as one of the most relevant parts of the building.
The building consists of a 3 stories-main body and a 1 story-secondary body which is parallel to the main building and has its own access. Both buildings integrate topographically, visually and functionally in the site.
The main building is presented as a simple and compact volume containing the entire education programs, administration and common uses.
The second building contains the gym and locker rooms, which can be used independently out of school hours.
It faces the arena and the playground on the south.
The rooftop of the gym is accessible from the ground floor of the school and the street Font de la Flàvia, becoming students’ access courtyard at peak hours.
All outdoor playgrounds are well oriented and related to the green area adjacent to Cervelló River.
In fact the forest extends into the school for the students to appreciate the value of nature and the freedom during their spare playing time.
The project arises from the geometric and functional simplicity, effectiveness of prefabricated construction system.
And a rigorous approach to the facilities in the aspect of energy efficiency which facilitates the management and the maintenance.



















