
Mediterrrani 32
LOCATION
Sant Pol De Mar, Spain
AREA
190.0 m²
YEAR
2012
“For me, a landscape does not exist in its own right, since its appearance changes at every moment; but the surrounding atmosphere brings it to life - the light and the air which vary continually.
For me, it is only the surrounding atmosphere which gives subjects their true value.” Claude Monet.
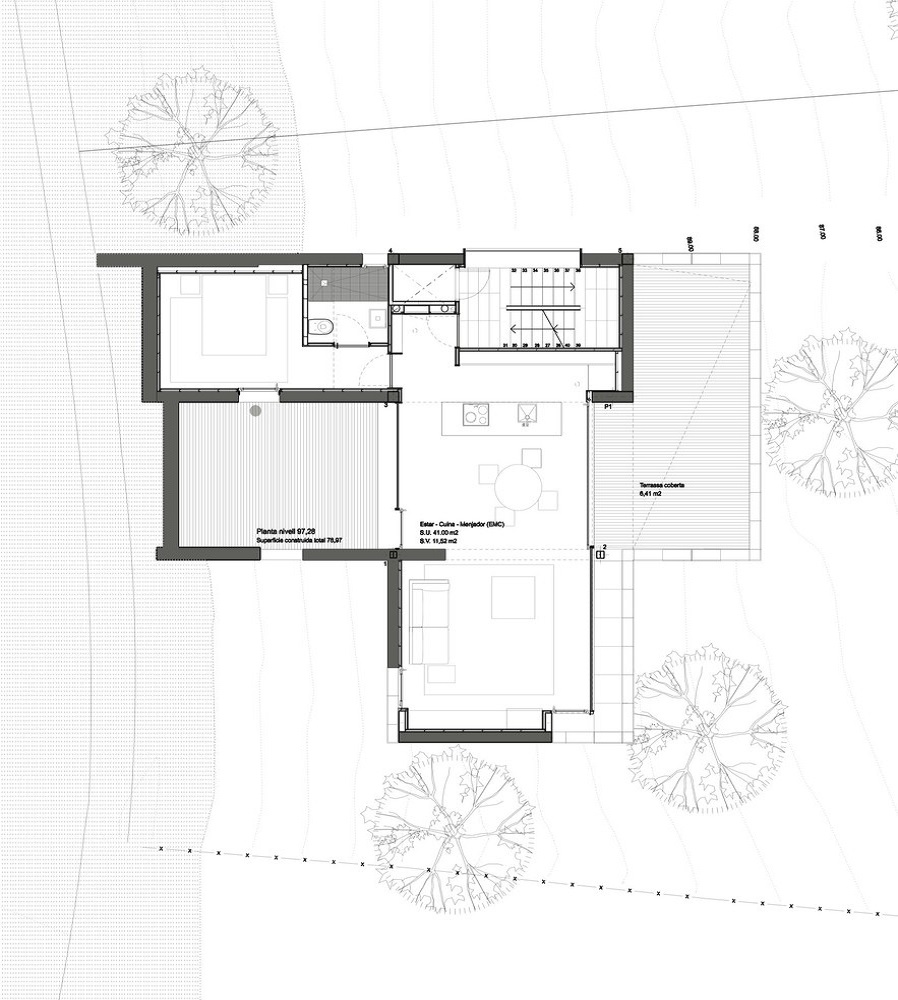
The project for this house emerged from a very simple premise, to build on a very steep piece of land with a gradient of almost 100%, boasting wonderful views and on a tight budget.
It was this highly complicated plot of land, surrounded by pine trees, that defined a good part of this project.
The land, and its perspectives, constantly changing as the hours pass, the colour of the trees, the movement of sun and shadows…
On the one hand, the reduced dimensions of the plot and its complex orography, and on the other the desire to leave the minimum imprint on the land led us to seek out a floorplan which, matching the trees that surround it, emerges from a trunk well anchored to the land and opens up in braches on each floor, in such a way that each branch becomes the terrace of the upper level at the same time as it becomes the porch of the lower one.
All this helps create a very formal building, with huge cantilevers facing out to emptiness, the woods and the sea which lie before it. A structure which opens up to these views and the sun, and which thanks to the terraces and the porches confuse the interior with the exterior.
A building which is equally formal in both its volume and the materials which compose it. Concrete, iron, timber and stone combining in a way that emphasizes the character of each one.
In the end, the whole building represents a dialogue between emptiness and fullness, between materials, between outside and inside; seeking out a balance between these highly contrasting parts.

















