ARCHITECTS
Xten Architecture
CATEGORY
Houses
LOCATION
La Quinta, United States
PHOTOGRAPHS
Steve King,Art Gray, Jeremy Bittermann
AREA
10650.0 m²
PROJECT YEAR
2012
Text description provided by architect.
The Madisonhouse is perched on a knoll in La Quinta, California, near Palm Springs. In order to shelter the house from extreme desert conditions, the massing and materiality are configured to protect against the sun and strong Northerly winds.
Concurrently the house opens completely along an East-West axis culminating in a spectacular indoor-outdoor living space with full height glass walls that slide away to embrace the desert landscape, light and mountain views.
The project was conceived as a series of freestanding volumes set beneath and between projecting horizontal slabs. These freestanding volumes in stone, concrete and oak are spaced and configured to create the different scales of indoor-outdoor space that flow between them.
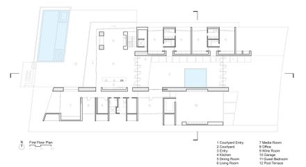
To the South a large volume containing service spaces buffers the house against the solar gain, and opens to the courtyard, the kitchen area and at both ends.
To the North a volume containing bedrooms creates a windbreak to severe winds that can reach 100mph. These volumes frame a courtyard, the main entry gates and a series of glass pivot doors, the main entry to the house.
An East-West shift in these volumes creates the space for an open kitchen/ dining/ living area that expands laterally across the entire West elevation. This is the main space of the house and it opens completely to the landscape. Glass doors on three sides pivot and slide away and disappear into hidden wall slots.
The terrazzo floors and white plaster ceiling extend the space horizontally out the landscape. Separate secondary volumes – a stone fireplace, a dark oak kitchen, a 30-foot long wood and marble island, an oak cabinet and floating cast terrazzo stairs -- anchor the space and conceal all the structure and systems required for the large spans and cantilevers.
A partial second story bridges the lower volumes and contains the master bedroom suite and an outdoor terrace/ fireplace area. The spaces on this floor are also configured with strong volumetric, solid/void relationships to create a free flowing indoor-outdoor series of spaces opening to the landscape.
While the plan is rational and orthogonal, one traverses the space obliquely, with dynamic diagonal views between the volumes opening space in multiple directions. The volumes mark the space but do not define it, allowing the landscape to become an integral and dynamic part of the house.
The Madisonhouse was designed to be more than just passively environmental. Building components, assemblies and fixtures were selected to achieve environmental goals. Insulated Concrete Formwork (ICF) walls were used throughout the project, creating super-insulated R60 assemblies.
Four-foot thick stone and concrete walls, deep glazing recesses and large cantilevered overhangs were calculated to shield the house from massive desert solar gain. The house opens in every direction to draw air through a second story thermal chimney.
The courtyard reflecting pool and main pool provide evaporative cooling for the ground floor areas. High performance glass, high efficiency mechanical systems, fixtures and photovoltaic panels further reduce the energy profile of the house.
Like the desert climate itself, the Madisonhouse is a study in dualities. Large open and fluid spaces are framed by massive solid and fixed elements. Light white terrazzo floors and countertops are bounded by dark rift oak wood cabinetry.
Rough stone walls frame openings of precise metal and glass doors. There are eighty sliding glass walls in the house, all configured to slide away and disappear completely into hidden wall pockets.
There are few materials used throughout the house but they are used in a multiplicity of ways indoors and outdoors throughout the house.
The white horizontal rooflines float above and cantilever beyond these walls, a series of strong sculptural lines that relate to the scale and the horizontality of the desert, connecting the house to its natural surroundings.
The white horizontal rooflines float above and cantilever beyond these walls, a series of strong sculptural lines that relate to the scale and the horizontality of the desert, connecting the house to its natural surroundings.





















