Owase Elementary School
ARCHITECTS
Yasuyuki ITO/CAn
PHOTOGRAPHS
Hiroshi Ueda
AREA
2738.0 m²
YEAR
2012
LOCATION
Owase, Japan
CATEGORY
Kindergarten
Text description provided by architect.
Established in 9th year of Meiji (1876), the Owase Primary School is one of the oldest primary schools in the East Kishuu where is famous for Kumano kodo which is the part of world heritage area
The site situates centrally in Owase, where the city is surrounded by the mountains of Kii from three sides and gently descends towards the east, opening out to the sea.
With many of the residents being graduates from this school, the regional memory and their valued historical context are inherited by many generations who have relations with the Owase Primary School.
The brief for the project was to design and deliver structural reinforcement/refurbishment of the existing RC-construction building and also the re-construction of the existing timber construction building, which has stood firm for more than 50 years.
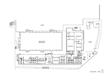
The existing stone steps at the external play ground have symbolic significance to the over-100-years history of the Owase Primary School. The proposed scheme provided a corridor space that faces these stone steps and connects the main gate to the existing RC classroom block.
This space also acts as an external corridor for the former timber school building where the students would change their footwear. Adjacent to this space are the multi-functional hall and the library, which will become central spaces for the school that enable students from different years to come in and use together.
On weekends and evenings, the rooms connected to this corridor – library, specialist classrooms and sports hall – can be opened to the local community in order to encourage more regional activities.
This architecture is formed from layered bands that have differing heights. The ground floor has 4 layers, the first floor has 5 layers and an intermediate layer exists between the two floors, making a 10-layer arrangement altogether.
Each layer gives rules to how the spaces are configured – they determine the changes in ceiling heights, window sizes and dimensions of storage which are recessed into walls as joinery items. The variation in ceiling heights enables spaces with small human-scale spaces and large shared spaces to coexist as one continuous horizontal volume.
With ceiling/wall surfaces dependent on the rules for each layer, the elevation and the reflected ceiling create contrasting characters with the floor arrangement, adding depth to the overall quality of the internal space. It avoids individual 'rooms' become independent from one another – users will sense a continuous and fluid nature of inter-relating spaces.
Openings provided to each layer will create various visual connections and in places frame the key views out to the surrounding landscape (mountains, sea, playground and trees).
The architecture is constructed with steel and white cedar. The main structure is formed with a simple system by steel frame construction. Steel columns are located on a grid system of 2.65m spacing, where the overall plan is 40m by 30m.
If each junction within this grid system had a column, there will be 192 points altogether. Columns can be subtracted from the grid in accordance to the required accommodation sizes. For example, a modular space of 8.1m by 8.1m can be created to be used as a classroom.
As a result of this methodology, the ground floor has 171 columns and the first floor has 145 columns. Braces are added to selected areas for earthquake protection.
The largest columns are 136mm diameter and the smallest are 86mm diameter – which means that the proportions are equal to conventional timber construction columns or even more slender.
The proposal uses white cedar log (135x165mm) material for internal partitions as a new method for timber wall construction.
These are supported by the steel columns to prevent them from falling. Taking into account of the safety and efficiency of construction and ensuring the structural stability/robustness of the walls, the logs are inserted into bolts in 600 pitch and then stiffened up by applying torque.
These are used in every internal space other than the fire-rated and external walls. This method does not require under layer/board such as LGS nor paint finish, simplifying the construction process of internal walls which could often be time consuming due to their multi-layer properties.
White cedar logs are stacked up to become wall finishes as themselves, creating an organic learning environment with great natural feel. The durability of these walls is suitable for schools where many activities take place throughout the lifespan of the building.
We feel that the use of this construction technique can be a starting point for future exploration of log-material as internal walls, as issues such as water-tightness and fire/wind protection will not need to be considered.





















