Casa Valle Encantado
ARCHITECTURE
H+LA
AREA
481.0 m²
YEAR
2012
LOCATION
Monterrey, Mexico
CATEGORY
Houses
Text description provided by architect.
South of the city of Monterrey on the skirts of the Sierra Madre, in an environment both suburban and natural, the landscape is dominated by the mountains that draw the gaze of whoever visits this site.
Here is where the concept originated, an open residence which absorbs the view and the outdoors, yet with one clear purpose: to isolate the house, maintaining its privacy and a pleasurable thermal comfort.
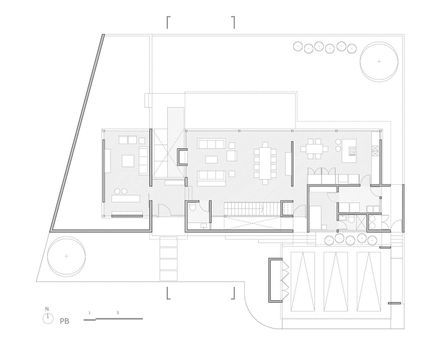
The house is laid out with longitudinal north-south façades. A dividing stone-clad wall levels the natural terrain and clearly divides the interior space from the exterior.
Disregarding the street, the challenge was to capitalize on the views to the mountain and natural lighting, resulting in a detachment of the roof slab from the envelope walls to avoid opening windows.
Entering a space first thought to be shut from the outside, the opposite occurs: an open space, flowing spaces flowing, continually in contact with the exterior.
The back garden can be accessed directly from the entrance hall, going through a water surface surrounding the living room, reaching the main terrace. All social areas have a way out to the garden, including the kitchen.
The stairway to the second floor is located lineally aside a great window, the only one on the south façade, covering a small interior double-height patio next to the dining/living room.
This allows for small spaces to be indirectly lit on two sides, and a sense of amplitude and contact with nature.
On the second floor, the family lounge and distributing hallways are flooded by light entering throught the great window, which is protected by a wood lattice.
The views and lighting are preserved throughout the house due to the roof slab floating over the walls. The bedrooms are spread and aligned on the north side of the building, protecting the spaces from the sun and undesired heat transfer.

















