JP House In Tragacete
In most developed countries´ small villages it is very difficult to find craftsmen who work in the traditional way.Somehow, a manner of making products can be given up for loss. The romantic idea of a really traditional construction method is just too naïve.
What is usually built are just cheap copies of rural houses that usually does not have an origin in that specific place, but in some ideal villages from Lord of the Rings or Joan of Arc films. Everything out of this becomes either too expensive or simply impossible.
The area where this house finds itself has been very rich on wicker and had a quite prosperous industry. Now, when driving through it, a huge amount of plants grow wildly and nobody cares about harvest it.
No more wicker chairs or basket are made.The idea of a house made out of wicker could be a good homage to an already past industry that probably will never come back.
Anyway again, it would be too romantic, rather abstract and unbelievable expensive. So, another building method should be introduced in order to achieve an interesting result both for clients and architects.
This commission started with one mail and a rather brief visit to the office of a person who wanted a second home in a remote village.
The reason of choosing a prefab process was that the house he wanted could not be built by local traditional constructors.
His desire was something different from the traditional houses that can be found in the area and, above all, a reliable process.Nevertheless, the house should of course fit in such a traditional compact urbanism of the small town.
The first sketches already show a compact simple volume and a scale to fit the surroundings. And also there is a kind of contemporary action for a house which will be used just weekends and holidays by an urban family.
The site is on an upper part of the village, very well oriented to the south and some views over the houses to the east.
Big enough for the one hundred and forty-four square meters to be build, and even some free space for a terrace and relaxed outdoor living.
In order to achieve a singular space, a different interior use and a distinct image, only one single movement was made.
The leaving needs more cubic meters and it grows up over dining table. So, the upper floor modifies also its volume and a room becomes a meeting point for the teenagers who will occupy the upstairs space.
The outside image also gets modified and the main façade gives the volume a distinctive but quite quiet, non aggressive view.
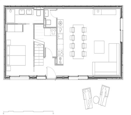
Just eight modules of eighteen square meters (six times three) and a small piece for the high part were needed. It follows a modest diagram and every module has its own function.
The ground floor holds a master bedroom and a bathroom, the functional module of stairs, facilities and laundry, and a living+dining+kitchen room.
Upstairs, are found two bedrooms at ends, again the functional module of stairs and bathroom, and the elevated room with no clearly-defined use.
The image of the house is completed by large square holes, all facing south and east. The material used for cladding the structure is a larch rain screen façade.In order to reinforce the holiday open concept of the living, two sliding doors of the same material are built, as they will be always open to the outdoor terrace, made of wood polymer composites.



























