Single Family House In Kifisia
ARCHITECTS
Spacelab Architects
CONSTRUCTOR
technikiapopsi, Thodoros Hainis
STRUCTURAL ENGINEER
Thodoros Hainis
MECHANICAL ENGINEER
Vanggelis Kozoronis
CATEGORY
Houses
AREA
190.0 sqm
YEAR
2012
LOCATION
Athens, Greece
PHOTOGRAPHS
Vaggelis Paterakis
Text description provided by architect.
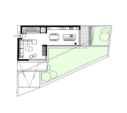
We were called to design a house on a rather problematic site with a triangular shape on a very busy street.
The design aims to maximize the area of the garden.
Taking advantage of the building code of the time of construction, the building was situated at the edge of the site forming an L shape that allowed it to embrace its garden.
The scheme was developed on two levels. On the ground floor, big glazing surfaces allow for a dialogue between the interior and the exterior.
The first floor appears to be more protected, with smaller openings. Thus, privacy is achieved for the three bedrooms that are located there.
The fencing of the site is done by a series of vertical metal plates with a second layer of armed glass to reduce the street noise.
For the interior, different types of wood has been used widely.
Oak flooring, black pine cabinets, antiqued oak for the kitchen cabinets and khaki lacquered oak for the staircase.

























