PROJECT YEAR
2012
PHOTOGRAPHS
Peter Bennetts, Michael Ong
BUILDING SURVEYOR
Anthony Middling & Associates
ENGINEER
Coulthard Shim P/L
BUILDER
Sargant Constructions
Text description provided by architect.
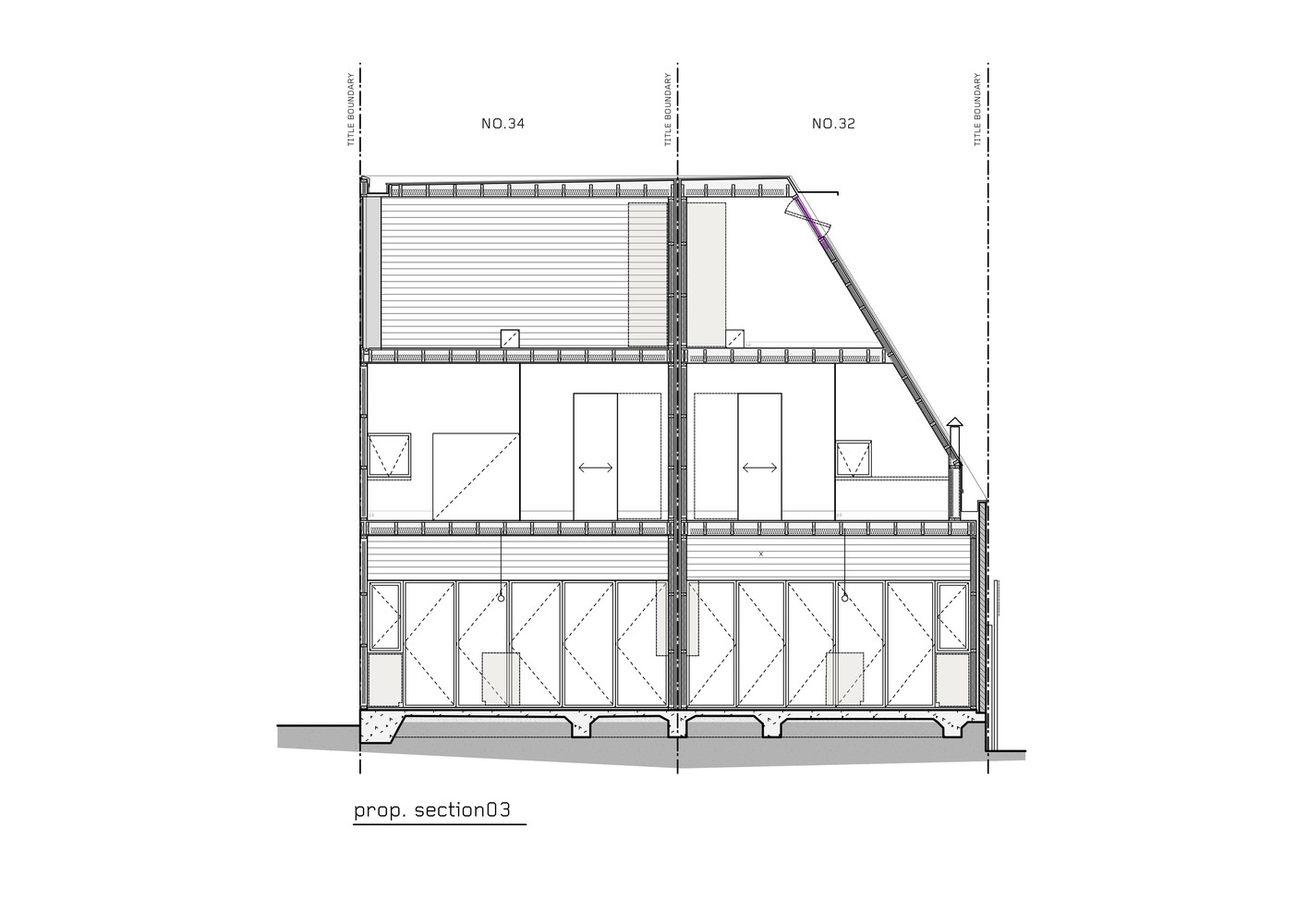
These neighbouring terrace homes are owned by two generations of one family. Both houses were in need of repair and update. HOUSE House is a single building that extends both homes. They are separate homes within one architecture.
The new structure runs north/south while the original houses run east/west. The fence between each terrace slides away to create one large backyard.
Australia has the largest houses in the world. Melbourne is flat, with very low density. There are few topographical constraints to force homes to have a small footprint.
This is unfortunate as many of the best homes around the world are modest in size and maximise what precious outdoor space there is. In Australia we go wide and low.
We pancake our homes. We eat up our outdoor space. Often people move to the suburbs under the false logic that they will have an abundance of open space and room for kids to play; however the enormous size of houses now makes this a convenient myth rather than a true outcome.
This results in car dependence and children’s isolation from a rich and diverse urban community (as kids don’t tend to drive that much).
With HOUSE House we deliberately went vertical. We stacked spaces 3 levels high. We maximised the backyard on a small site.
In cities like Tokyo, London, Amsterdam and many more, living vertically is a way of life that generates unique housing while also making the most of a densely packed urban condition.
It creates a vibrant way of life that sprawl and car dependence could never achieve. But what if we introduce a footprint restriction beyond what is required?
What if we build a tall thin structure that maximises the modest backyard? We produce spaces that, though familiar in many parts of the world, are unfamiliar in Australia; tall, cavernous spaces with light cascading from above.
Each space different in personality and function so that the modest home can adapt to the various complex moods of its occupants.
Andrew Maynard Architects generally attempt to avoid crashing new structures into old. With HOUSE House we deliberately created two separate forms. We respect the twin Victorian terraces. We repair and restore them.
We do not extrude or copy the original as this only ends in an odd tumor. The new structure is built across the rear of the terraces. A clear gap remains between the two. Weather is kept out of this cavernous space by glass infills.
This is where you rise and spin up the spiral stair, interacting with both the aged brick of the terrace and the cedar of the new. We’ve avoided using new synthetic, shiny or plastic materials. The materials have had a past life. The new form is clad entirely in cedar.
Raw steel plate and detailing describes the openings between structures and the threshold between old and new. Dark plywood paneling rises through the light-filled void between the structures.
We strategically use mirror on the cabinetry in the dining area to make the space feel large while giving the illusion that light is coming from both sides and that we are surrounded by garden.
The key to making a modest-sized home flourish is to provide a number of spaces with various personalities. The active family/living spaces don’t need to be large, yet they must have loose boundaries.
The original front sitting room is retained. After this the living spaces can open from the dining room to the rear fence. The side fences can both be opened to let outdoor activity spill beyond the living area.
The kitchen bench continues through the rear glass wall. The inbuilt barbecue sits on the end of the bench. The levels above the living areas provide quiet contemplative spaces. Each space is connected with both the rear yard and the internal lightwell.
Like all of our buildings sustainability is not the narrative, it is a core responsibility in the same way that lighting and plumbing are. All new windows are double glazed.
Glass roofs can be thermally challenging therefore we have used high performance glass with automated louvres over so that sunlight stops before it hits the glass, not after. There’s no green house effect here.
The owners can adjust the louvres at anytime between full sunlight and complete block out. Louvres to the south of the lightwell are automated to allow the space to quickly vent should heat build up.
High performance insulation has been used in the new walls and roof. The existing terrace roofs have also had an insulation upgrade. Solar panels cover the roof.
On the cedar boundary wall we’ve painted a graphic. Melbourne has some of the best street artists in the world and thankfully they donate their work to the city within its numerous laneways. Though street art is welcome throughout Melbourne tagging is also prevalent and it tends to be more destructive.
Tagging is to be expected on almost any exposed wall. Most tagging is drawn with black spray paint. To combat this we introduced a black graphic to the facade that either makes the tag invisible or alternatively can be quickly painted over to discourage additional tagging.
Will this tactic work or will it simply offer a greater incentive? We don’t know? Most importantly we engage with tagging, one of the ubiquitous parts of the city, rather than fortifying ourselves from it.
The graphic used is the child-like image of a suburban home. Here we see the overlap of two distinct approaches to the single family house; the stereotypical home overlaid on the import.
If you look closely elsewhere in the house you will find numerous “Easter Eggs” following the same theme.
















































