House N by Sharon Neuman Architects
ARCHITECTS
Sharon Neuman Architects & Oded Stern-Meiraz
AREA
500.0 m2
CATEGORY
Houses
PHOTOGRAPHS
Elad Sarig
LOCATION
Israel
Text description provided by architect.
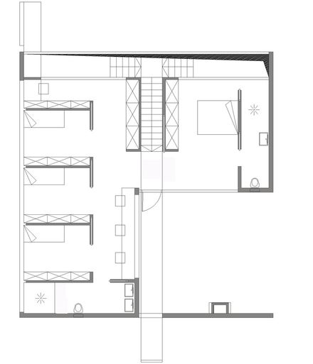
260 sqm modern minimalist house is located in the unlikely setting of the rural town of even Yehuda, 20 minutes drive from Tel Aviv.
The concept for the house was inspired by the work of minimalist artist Walter De Maria- Gothic Shaped Drawing that's is showing a basic one line 2 dimensional shape of a house, almost as is drawn by a child.
A tall brick painted wall in a traditional shape of a house, together with an attached outdoor chimney, provide the needed privacy the clients requested towards the front, and contrasting with the rear of the house which is made completely of glass and is open to the back – facing north.
A floating open bridge/balcony on the first floor also acts as a canopy for the main entrance underneath and leads visitors through a long gap in the external wall to the main entrance of the house.
















