Brewer House
ARCHITECTS
Sarah Scott Architects Ltd
LOCATION
Wanaka, New Zealand
BUILDER
Tony Quirk Builders Ltd
CATEGORY
Houses
PROJECT YEAR
2012
PHOTOGRAPHS
Mickey Ross
Text description provided by architect.
The site is located on Roy’s Peninsula on the shores of Lake Wanaka approximately 15km North of Wanaka. The building platform is located at the toe of a glacial escarpment on a naturally occurring terrace.
It is surrounded by a broad panorama of the NZ Southern Alps, with views North to the head of Lake Wanaka and West to the mouth of the Matukituki River. On its chosen site, the house follows the contours along the toe of the hill allowing it to sit into a naturally occurring hollow.
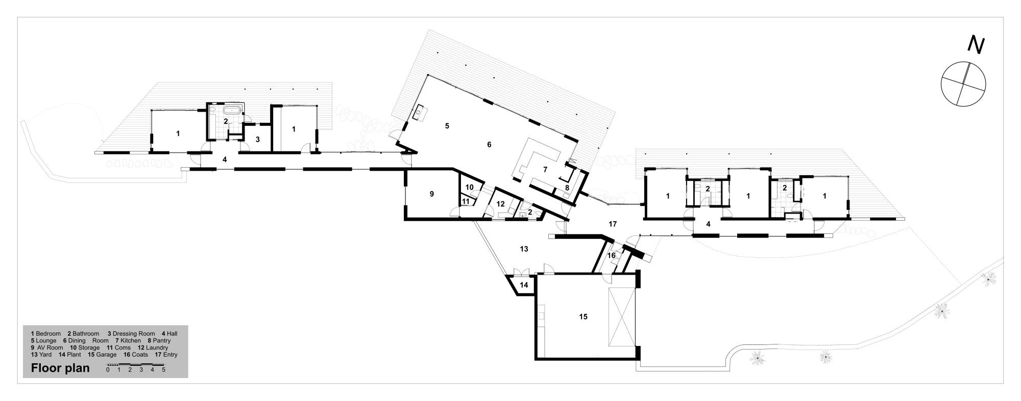
The axes that generate the plan begin in the landscape, flow through the house becoming corridors through the building and re-emerge as views into the landscape.
The plan form of the house is respectful of its immediate surroundings, particularly the rocky outcrop to the rear of the building, changing direction to avoid conflict with this naturally occurring feature.
This change in direction breaks the plan into three separate entities consisting of a main living space, with two attached bedroom wings.The individual pavilions are further broken up by the low angled split pitch composition of their roof planes. This eliminates large expanses of roof being visible from a distance.
The plan composition is a narrow linear arrangement of rooms connected by a rear corridor. This keeps the width of the building and consequently the height of the roofs to a minimum.















