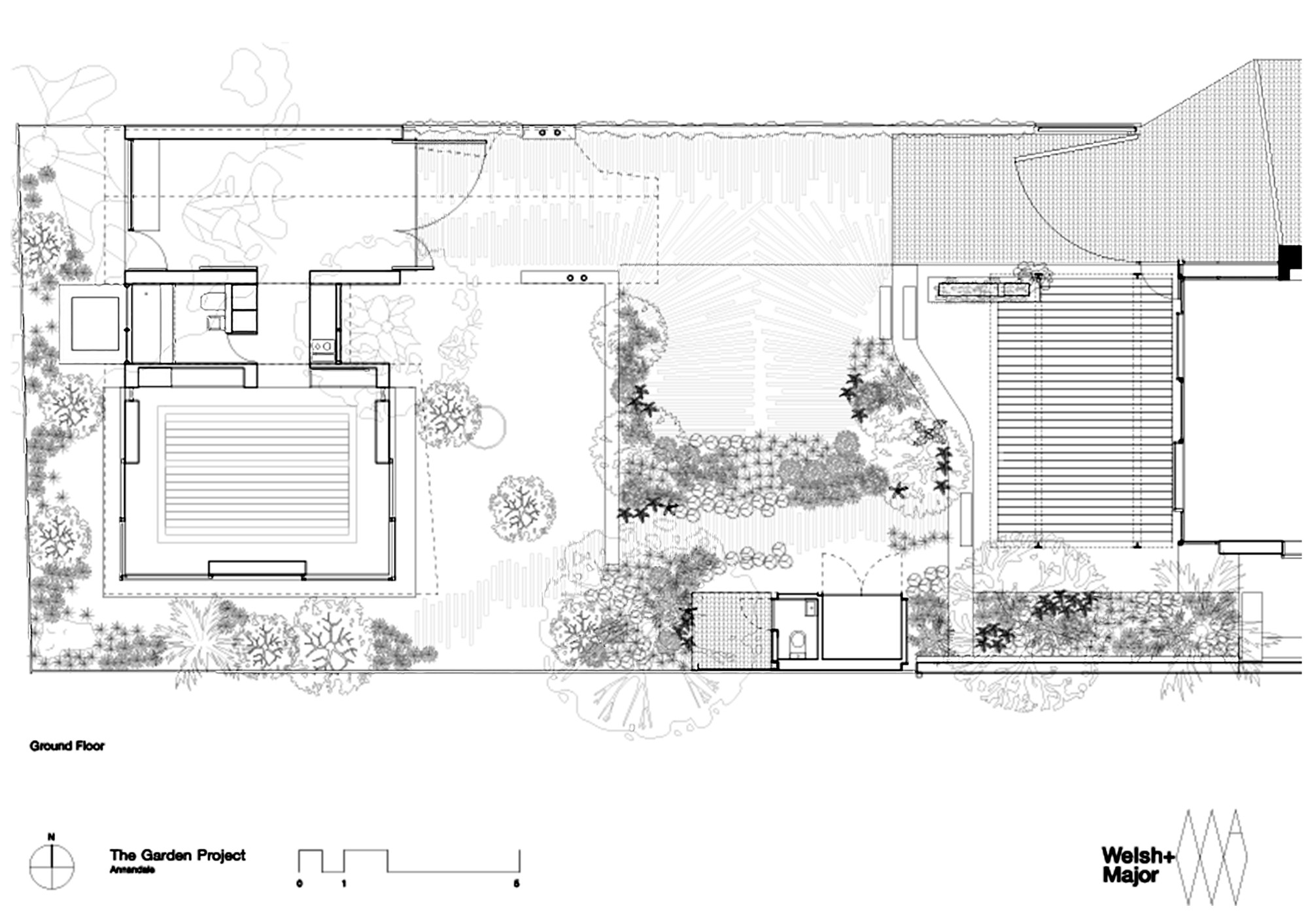
The Garden Room
PROJECT TEAM
Chris Major, David Welsh, Steven Sheridan
GARDEN DESIGNER
Peter Fudge Design
ARBORIST
Robert Hannan
HYDRAULIC ENGINEERS
Henry & Hymas
The Garden Project transforms the site of a late Victorian home in inner-city Sydney into a garden oasis.
Taking a stand-alone underused garden, Welsh+Major have designed a flexible series of indoor and outdoor spaces, integrating the house with its surroundings.
It bookends a lush central garden space with the garden flowing around and through the structure. It is a quiet room, entertaining space or extra accommodation.
The project is conceived with the garden at its centre. The flexible “garden room” is designed to blur the boundaries between garden and architecture.
The built forms sit low within the site, wrapping around existing trees and folding down to the boundary. A modulated concrete roofline lifts the gaze to district views beyond.
The roof folds and floats, playing with ideas of enclosure and lightness; solidity and transparency.
Internal spaces are permeable, defined by floor and ceiling planes rather than walls. Robust materials used in the new work are designed to take on the patina of the garden itself in time.
The garden is loosely structured and designed to occupy, rather than edge, the yard. Small outdoor areas around the house and the garden room are reclaimed as both living spaces and green backdrops.
The garden connects the spaces and forms around and within it - integrating the site and linking the house to its surroundings.














