
Jesolo Lido Pool Villa
ARCHITECT IN CHARGE
Jacopo Mascheroni
PROJECT MANAGER
Diego Magrì
AREA
320.0 m2
STRUCTURAL ENGINEER
Studio Antonello & Associati
WATERPROOFING
Acqua Risolta, Quinto Vicentino
CONTRACTOR
Eurocostruzioni, Jesolo Lido
The Jesolo Lido Pool Villa is a custom designed prefabricated wood structure, and it was built and furnished in only 6 months.
Energy-saving high standards have been applied to the shell to guarantee maximum comfort and almost zero costs throughout the four seasons.
The building features wood structures as a flexible and anti-seismic system which also avoids thermal bridges.
The 31 cm of perimeter insulation, argon-gas insulated glass facades, 10 kw of photovoltaic panels installed on the roof and the interior / exterior led light fixtures co-operate in making a technologically contemporary building.
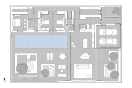
Because of the small dimensions of the plot, the design goal has been directed in leaving as much open space as possible.
The indoor living area has transparent sides which opens towards two different-sized patios. The largest one, to the west, features a long swimming pool, which takes the entire length of the space, and two planted square inserts.
An olive tree is the main three-dimensional element in the patio and it’s placed next to the staircase which leads to the underground level, where the storage and technical rooms are located.
The smaller patio, to the east, also features two planted inserts with another olive tree to counter balance the other side.
The outdoor areas, as a client’s main request, needed to be low maintenance, so most of the surface was paved and the plants in the inserts where selected in order to live with the least care possible.
The 4-meter roof overhang to the west allows to have enough shading during the hot summer months and allows to place a covered outdoor seating and dining areas.
Interiors are custom designed with typical JMA solutions, like audio/video walls, custom designed solid-surface kitchen, motorized roller shades which disappear into the dropped ceiling for maximum continuity of indoor-outdoor areas, integrated indirect lighting and home automated electrical system.
The radiant floor heating system is powered with an electric heat pump which takes the energy from the photovoltaic panels. The air-conditioning system is fully integrated in the dropped ceiling with linear diffusers and hidden intakes. As always for JMA, the pursuit of simplicity and linear solutions represented a large part of the design work.






















