Incubo House
ARCHITECTS
María José Trejos
LOCATION
Escazu, Costa Rica
CATEGORY
Houses
PROJECT AREA
400.0 m2
PROJECT YEAR
2013
LIGHTING
Estudio 27
KCRCHITECTS
Santos
ART
Sergio Pucci
SITE AREA
544.97 M2
ELECTRICAL AND MECHANICAL
Ing. Sergio González Rodríguez
STRUCTURES
Ing. Mauricio Carranza de AESA Ingenieros Consultores
DINING ROOM, BEDS, LIVING ROOM
Diseño exclusivo por María José Trejos y Sergio Pucci
INTERIORS
María José Trejos y Sergio Pucci
Text description provided by architect.
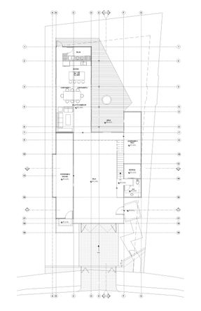
The original cedar tree on the site plays a very important for the layout of the house, so that there is a view of the tree from anywhere in the house.
Also, the shape of the house responds to the impact of climate elements of the place: the central double height module acts as a lung with cross ventilation, and the west glass facade works for natural lighting.
Several considerations were taken into account so that the house had the least possible environmental impact, both in design and materials, as well as in systems for energy conservation.
For example this was considered in the choice of materials, so that they are renewable, reusable or recyclable in addition to durable and low maintenance.
Wood from the cedar tree was used in the stairs, and some other details of furniture in the house. The deck consists of certified wood from renewable sources mixed with recycled plastic, concrete floors and bamboo, among others.
Additionally, the house has rainwater collection systems for toilets and irrigation, it is planned for solar panels, container doors were reused for most doors of the project, the hot water is solar-heated, cross ventilation is enough so that the home does not require air conditioning, and natural lighting makes virtually no electric lights necessary during the day.
The use of containers in the construction gives a rich contrast to the design, in addition to reducing the environmental impact, which means the reuse of an existing element, generating less CO2 emissions than the cement production and transportation from trucking all those traditional materials to the site, not to mention a less invasiveland movement.
It is estimated that the construction time is reduced by 20% and the total cost about 20%.




























