
Albion Barn
ARCHITECTS
Studio Seilern Architects
LIGHTING CONSULTANT
Sutton Vane Associates
QUANTITY SURVEYOR
Baqus
ARCHITECT IN CHARGE
Studio Seilern Architects
SERVICES ENGINEER
Atelier Ten
STRUCTURAL ENGINEER
TALL Engineers
PHOTOGRAPHS
Philip Vile
AREA
300.0 sqm
YEAR
2013
LOCATION
United Kingdom, Oxford, UK
CATEGORY
Barn
The buildings have Historic Interest Building Status and the property falls within the Conservation Area of Little Milton.
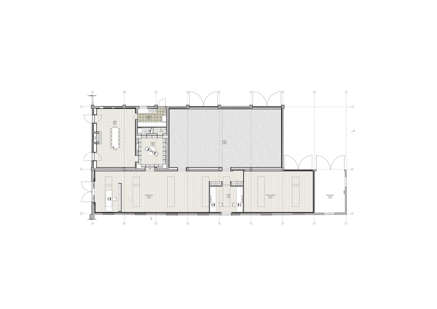
The project brief was for a conversion that was to offer a new contemporary art and exhibition space that would help contribute to the upkeep of the estate, consisting of a dining room and of ces that wrap around a hidden library at the centre of the project.
This library, the heart of the concept, contains four secret doors that when opened connect to the surrounding spaces.
When these doors are closed, the room is lined with bookshelves on all sides.
It has a mirrored polished steel ceiling, which doubles the perceived height of the space by creating bookshelves that seem to extend to in nity.
A set of thin L-shaped steel plates create a very light cantilevered balcony, allowing access to the higher bookshelves while maintaining their visual verticality.
This creates a reading room with an intimate ambiance contrasting with the surrounding bright lit rooms.
The main barn is located aside from the house courtyard setting, out of view from the High Street and just inside the private access road, as it enters into the courtyard.
A lean-to block addition with asbestos roof was added to the main barn at some stage to the south elevation, obscuring the main barn and forming the boundary wall to the neighbouring property Betts Farm House.
Describing the design, Christina Seilern, said: “While the galleries are pared-down in design, the library is somewhat whimsical.
It has a mirrored polished steel ceiling, which doubles the perceived ceiling height of the space by creating bookshelves that seem to extend to in nity.
A set of thin L-shaped steel plates create a very light cantilevered balcony that allows access to the higher bookshelves, while maintaining their visual verticality.’























