Expansion Of Nijvel’s Municipal Crèche / BURO II & ARCHI+I
ARCHITECTS
Buro ii & archi+I
ELECTRICAL
Devogelaere
CLOSED SHELL CONSTRUCTION
Mel et Tof concept
CATEGORY
Kindergarten
YEAR
2013
AREA
880 m²
PHOTOGRAPHS
Filip Dujardin
LOCATION
Setting Copse, Salisbury, Wiltshire SP3, United Kingdom
GENERAL CONTRACTORS
HULLBRIDGE ASSOCIATED, Trazegnies
Text description provided by architect.
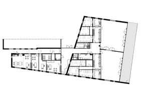
This project consists of expanding the ‘Children of the World’ crèche at Nij vel. The building is located in a park setting of rural signifi cance, the Dodaine park. Two wings with 18 places (sized for an increase to 25 children) will be added to the crèche plus various administrative rooms for staff and services.
Besides this restrictions imposed by the site, this project presented the challenge of designing an energy-effi cient building.
Close cooperation and communication between the architect, sustainability consultant and municipal offi cials resulted in a decision to design the project according to a passive standard. The existing buildings are going to be renovated in the same spirit to make them energy-effi cient.
ARCHITECTURE
The architecture is completely in keeping with the building’s function (the playful world of children). It was logical to use wood for the structure and for the facades because of its warm look and feel and its technical properties.
ENGINEERING
Along the ‘Wereldlaan’ the world of a child is immediately apparent through the size and positioning of the facade openings and the different colours in the interior of the building.
The south facade is very open and leads on to a large patio with a view of the park so as to benefi t optimally from the improved sunning.
The northeast and northwest facades are more closed in order to limit heat losses. The interaction of the roof slopes creates possibilities for natural ventilation and cooling.













