Christ Methodist Church
ARCHITECTS
K2LD Architects
PROJECT YEAR
2013
AREA
3953.0 sqm
LOCATION
East Coast Parkway, Singapore
PHOTOGRAPHS
Patrick Bingham Hall
Text description provided by architect.
Inspired by the challenges of bringing traditional ideas around worship into a contemporary architectural context, K2LD architects looked to re-imagine the traditional church.
How new and different spatial configurations could be used to preach the same gospel. The main aspirations of the church where distilled into three key points; the need for an image, environmental responsibility, and multifunctional spaces.
In response to the need of a church to communicate to the outside community its mission through a strong image, a slatted screen innovatively unveils the cross, embodying contemporary notions of worship and fellowship.
When illuminated at night, small crosses appear to almost dance across its facade, further informing the entirety of the skin as an icon for the church and community.

Furthermore, the screen facade shades the interior spaces from the tropical climate and provides needed ventilation.
This allows for the main atrium space to remain open air, while being afforded protection from the elements.
With fluid wavelike patterns taking inspiration from the nearby sea, the slatted facade condition softly envelops the building, containing its discreet functions behind a unified front while supporting its environmental agenda.
Vertical greenery is then strategically placed on the east/west facades for optimal growth in Singapore’s climate. The design looks to the stacking of programs and overlapping relationships they form.
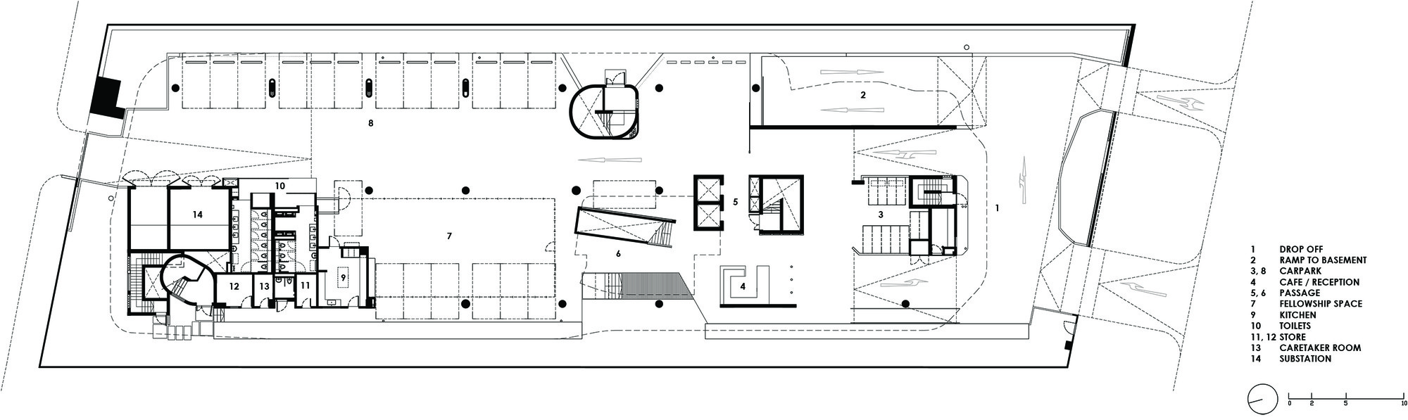
At the entrance, the building is lifted from the ground to allow the spaces below to flow through the first floor.
This space acts as a service/car park during overflow hours and open air event space.
Often converted into a large open-air dining space, it is used to gather the congregation outside of the main worship halls for additional community programming.
Circulation is then weaved through the spaces of the building; A large staircase in the centre of the first floor brings circulation and air up through an atrium formed by asymmetrical voids carved between floor plates.
This allows for visual connection to be maintained across various programming areas vertically. The main worship spaces form the heart of the building on the second and 3 rd floors with the atrium feeding into it.
Arranged in an auditorium style, the worship hall aims to orientate the audience to the minster, bringing its audience closer to the stage. Above on the 4 th and 5 th floors lie the education spaces which benefit from roof terraces and outdoor play spaces.














