
House For Books And Blues
COLLABORATORS
Sweco, Forene Montører Kongsberg, Notodden Rørlegger Forretning, G.k. Notodden, Murstad Entreprenørservice As, Heis Plan As, Loe Betongelementer As, Kranor As
ARCHITECTS
Børve Borchsenius Arkitekter And Askim/lantto Arkitekter As
LANDSCAPE
Dronninga Landskap As
PHOTOGRAPHS
Espen Gees, Jiri Havran, Ivan Brodey
AREA
5225.0 m2
YEAR
2013
LOCTION
Storgata 1, 3674 Notodden, Norway
TYPE
Cultural Center
The project is a result of winning an open, international plan and design competition in 2010.
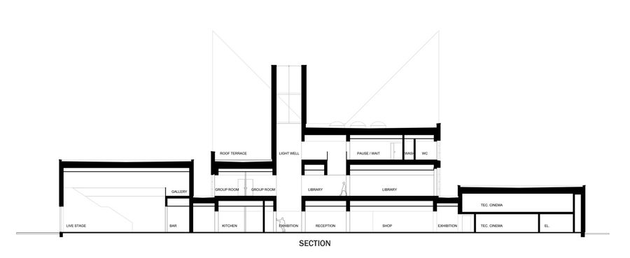
The House for Books and Blues, or Bok & Blueshuset is a three-story house containing library, cinema, live stage, café, museum for blues, sound studio and music tuition.
Notodden Blues Festival and Europas Bluessenter also have their offices here.
The architectonic expression of the house tries to pursue elements of the historical industrial architecture, that characterizes parts of Notodden`s dock area also today.
The different functions are organized in their own volumes and can, therefore, be read out of the architecture of the house.
Three large lightwells above the reception and vestibule are the signature of the house.
























