YEAR
2013
LOCATION
Singapore
CATEGORY
Houses
Text description provided by architect.
Just off Stevens Road is this Zen-inspired dwelling with strong architectural lines and shapes that are further accentuated by the materials used.
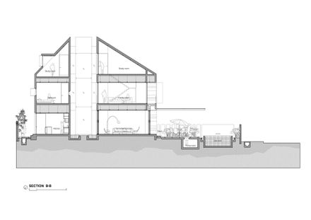
Comprising two main volumes, the front block houses the social spots, such as the living and formal dining areas, whilst service functions are relegated to the back, along with the kitchen.
Although visually similar, the blocks are distinguished by texture – the social activity block is clad in granite and the service block in fare-faced concrete.
The design brief called for all spaces on the ground floor to form a cohesive whole so that when all doors are open on the ground floor, the individual spaces merge into a one – starting from the lap pool and garden at the entrance, to the living room in the front block and all the way to the kitchen in the rear block.
A reflective pool divides the two main blocks and sits at the base of a sheer three-storey-high void that reaches the roof.
This void forms the home’s visual and spatial centre and also works as a means of drawing up hot air so that the cooler air can rush in to keep temperatures low.
The master bedroom sits on the second floor of the main social volume, whilst the master bathroom as well as the children’s bedrooms are to the back.
In the attic floor above is an additional bedroom and number of multipurpose spaces. Adjoining terraces and open decks lined in artificial grass make the rooftop an interesting space where lines between indoor and outdoor space are blurred.
With its natural textures and abundance of greenery, it is the adherence to minimalist design that forms the essence of this modern family home, thus providing its inhabitants with a relaxing, spacious abode to return to at the end of the day.






























