
Wakatipu Guest House
Architects Team
Team Green Architects
AREA
106.0 m2
YEAR
2013
LOCATION
Dalefield, New Zealand
CATEGORY
Houses
MANUFACTURERS
Colorsteel, Resene
PHOTOGRAPHS
Sam Hartnett
Text description provided by architect.
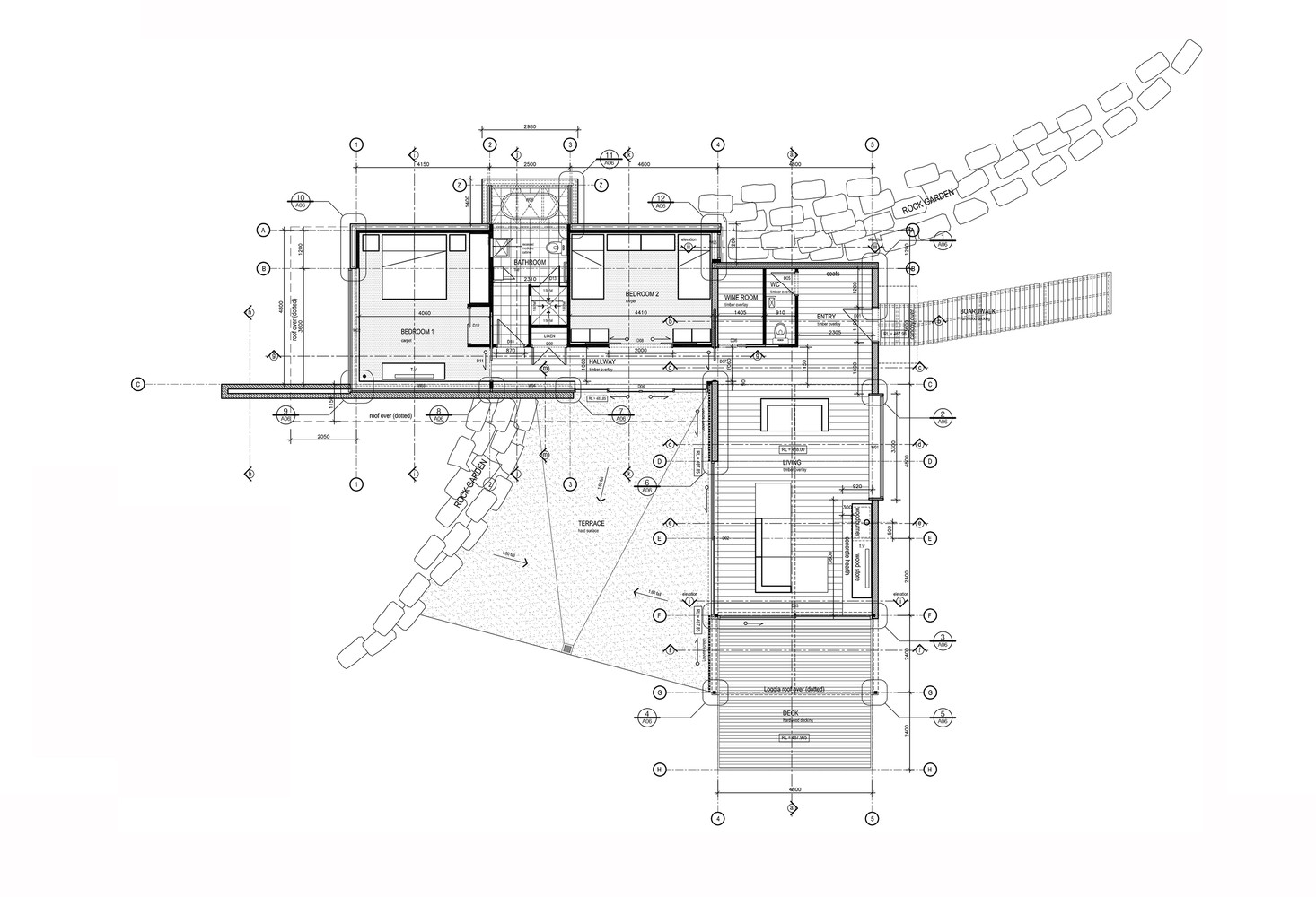
Designed as guest accommodation in the grounds of an existing rural property in Dalefield, the Brief was to provide a place to retreat, that offers a simple and relaxing experience for the owners’ family and friends.
The requirement was for a two bedroom modern ‘Villa’ offering robust but comfortable accommodation for up to 8 people with a specifically designed Bunk Room, and separate Master Bedroom.
A simple but well-appointed Bathroom also offers the guests a private and relaxing bathing experience under the stars, located in a subterranean roof-glazed recess facing skyward toward Coronet Peak.
In response to the strict Planning Conditions the Guest House subtly conceals itself by partially bunkering into the pastoral landscape within a grove of established Silver Birch trees which were purposely retained to provide a deliberate feeling of separation and tranquility away from the main house.
The design uses a simple combination of two distinct and contrasting building forms: A modern (partially submerged) pavilion with a large hovering flat-roof houses the Bedrooms and Bathrooms, and a more traditional pitched-roof shed houses the Living Area and sheltered Loggia.
The Living Terrace and Loggia Deck provide exterior open-air options of varying protection from seasonal sun and weather, as well as the adjustable Cedar sunscreens to allow variable levels of sunlight into the building.
The flexible Exterior Living spaces were required to open out from both the Sleeping and Living Buildings.
The building and moveable sunscreens have used natural Cedar to work with the surrounding natural textures, and the familiar Grey corrugated roofing profile refers to the farm sheds seen on the surrounding pastoral land.

















