ARCHITECTS
Jost Architects
LOCATION
Main Ridge, Australia
INTERIORS
Nina Caple
BUILDER
The client
PROJECT YEAR
2013
Text description provided by architect.
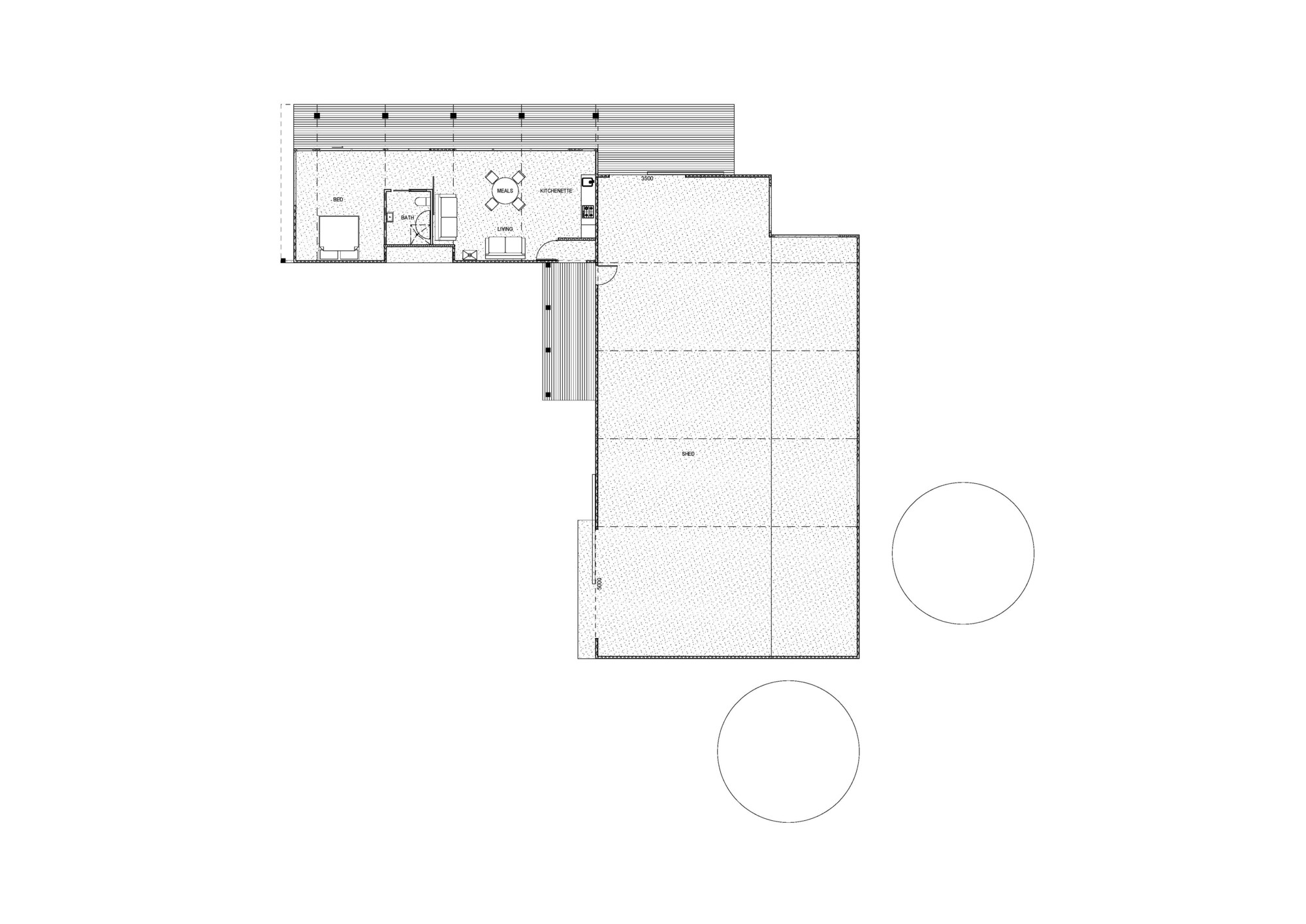
The ÜberShed is a new work-shed / rural retreat on Victoria’s Mornington Peninsula. The client’s brief was for a functional shed with a work bench area, to house farming equipment, and a simple, attached retreat with a bathroom, kitchenette and sleeping area.
“The client wanted a practical shed for their farm which also included an area he and his family could use when coming to the farm for the day or short visits; an uncomplicated and aesthetically pleasing space which had both the pragmatism of an outbuilding and the appeal of a living space.
Furthermore, it had to be sympathetic with, and take advantage of, the amazing surroundings of huge gum trees, native ferns and amazing views looking over the Peninsula” says the architect, Patrick Jost.
Conceptually, the two areas of the building are positioned to form an L shape, taking advantage of the impressive view through the valley to the north. The work area is has two roof pitches, one steeper to suit the photovoltaic panels to provide power to the building.
From one aspect, the building is in essence a classic Australian shed clad in galvanized corrugated roof sheet.
When viewed from another angle, it is clad in the rough sawn hardwood with large sliding doors made from recycled timber sourced by the client.
The retreat’s wall from this side is solid and clad in corrugated sheet with a simple timber recess to maintain a visual barrier to the trucks and tractors driven in and out of the shed during the day.
In contrast to this, the other aspect has a full building length of glazing orientated towards the bush outlook, grazing kangaroos and sunsets.
The interior, by Mini Living Interiors, compliments the simplicity of the overall design with raw but neat and clean finishes such as polished concrete floors, exposed steel structure and a rustic wall paper that perfectly suits the external finishes and design.
The client also created an amazing “display wall” inside the shed, made up of old farming equipment and tools that was owned by his grandfather and is a tribute to him.
The Über Shed is a contemporary interpretation of an archetypal piece of the Australian bush that sits comfortably in its beautiful location.


























