
Strasbourg School Of Architecture
ARCHITECTS
Marc Mimram
CATEGORY
Educational Architecture, University
LOCATION
Strasbourg, France
AREA
4500.0 m²
PHOTOGRAPHS
Julien Lanoo
YEAR
2014
STRUCTURAL ENGINEERING
Marc Mimram
ACOUSTIC ENGINEER
PEUTZ & Associés
CONTRACTOR
Leon Grosse
Text description provided by architect.
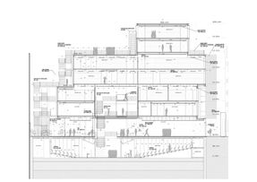
The teaching spaces of La Fabrique are projected into the streetscape, encouraging students to engage with the building’s context and allowing the city to permeate the ribbed veil of the façade.
The transparent plinth gives the feeling that a gravitational force has pulled the building upwards leaving it to rest on stiletto heels, allowing the city in underneath.
The building’s massing consists of two-storey blocks stacked on top of each other.
The lower block cantilevers over the transparent, ground floor plinth, while the uppermost block steps back, providing the maximum volume within the constraints set by the planning regulations.
The blocks are unified by the common envelope, a semi-transparent aluminium skin that cloaks the glazed “boxes.”
A metal curtain glides between large bay windows to frame views across the city, its homes and its cathedral.
By day, the building reflects the changing light as the sun moves around the façade; by night, inside and outside are reversed, revealing the building’s skeleton and morphing between transparent and opaque.
Marc Mimram, Founding Director of the practice said: “The central location presented a rare opportunity for an architecture school to engage in a dialogue between the city and the study of architecture. The relationship between structure and envelope has been the foundation of architectural practice since the Gothic age, and since the 19th century this has been beautifully expressed through metal structures. Today, there can be a tendency to enclose, thicken and solidify, to separate ourselves from the environment and the natural elements. La Fabrique expresses a renewed ambition to resist this trend and to open the building towards the city and the urban skylines.”
The new school was above all designed as a tool for its students, a means to experience the study of architecture and to provide shared spaces in which to interact, collaborate and discover.
The building’s name, La Fabrique, refers to the history of the site, but also echoes the study of architecture: the construction of knowledge and the knowledge of construction.





















