
Social Housing For People Over 65 In Girona
ARCHITECTS
Arcadi pla arquitectes
PHOTOGRAPHS
Filippo Poli
YEAR
2014
LOCATION
Girona, Spain
CATEGORY
Apartments
Text description provided by architect.
The building of 115 dwellings is located in the area of the northern entrance of Girona, in an area next to "Puig d'en Roca".
Promoted by the “Patronat Santa Creu de la Selva”, comprises varied apartment types, designed for people over 65 years old with a low rental cost.
The project was developed especially taking care of the collective spaces of socialization, and at the same time, developing technological solutions in the field of sustainability and energy savings.
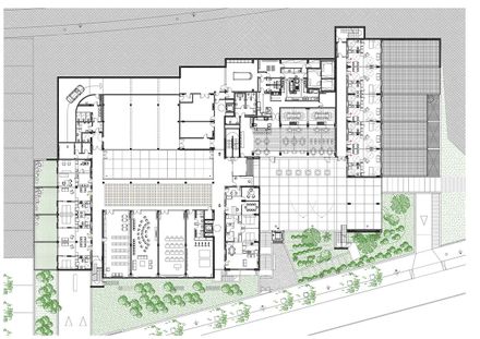
The building has an outdoor entrance space from which one can enter to the building, a bar-restaurant and a garden of 5000m2.
living room, office, gym, conference room, audiovisual room, training room, hairdressing, social care, medical and nursing service.
The shape of the building contrasts two volumes in "T" of different height (P+2 and P+4) linked with a communication axis, organizing the circulations over large areas and covered walkways.
The circulation spaces are wide with the purpose of improving relationships between residents.
Moreover, the building has different outdoor patios from which the residents can access to the flats.
At the same time, these patios lights the space and allow the cross -ventilation of dwellings, as well as the ventilation of services (bathrooms and kitchens).























