
Center For Technology And Design In St. Pölten
CENTER FOR TECHNOLOGY AND DESIGN IN ST. PÖLTEN
AllesWirdGut Architektur
ARCHITECTS
Alleswirdgut architektur
LOCATION
Sankt Pölten, Austria
CATEGORY
Research Center
GENERAL PLANING
Arge alleswirdgut fcp
PHOTOGRAPHS
Alleswirdgut architektur/ guilherme silva da rosa
AREA
14131.0 m2
PROJECT YEAR
2014
MANUFACTURERS
Muebles cook
HKLS (HAUSTECHNIKPLANUNG)
Altherm engineering gmbh
BUILDING PHYSICS AND FIRE PROTECTION
DI Röhrer
ELECTRICAL PLANNING
Kubik Project Ges.m.b.H.
ILLUSTRATIONS
AllesWirdGut
MODEL
Mattweiss
STATICS
Fcp fritsch, chiari & partner zt gmbh
CLIENT
Gebäudeerrichtungs- und betriebsgesellschaft mbh st. Pölten
Text description provided by architect.
The Center for Technology and Design – abbreviated ‘tede-Z’– is a project for an educational institution that combines continuing education for technical professions with university-level design and engineering programs of study.
Aside from creating a contemporary working atmosphere, the focus here above all is on a high degree of interdisciplinarity.
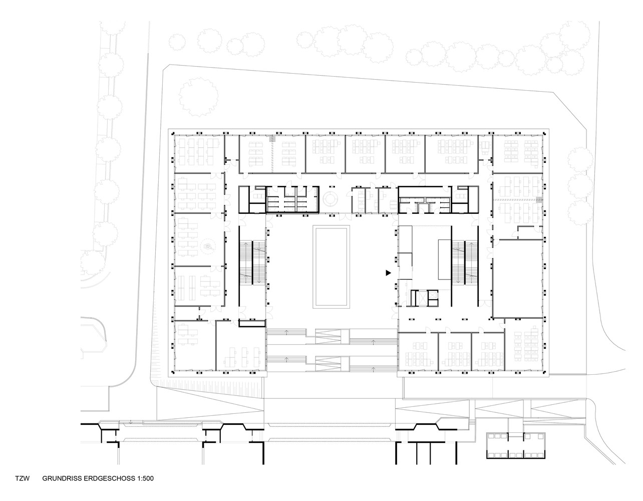
Accordingly, the architectural concept is centered on the communication between different types of users. A common lobby connects all floors and public areas such as the auditorium, break and presentation areas.
The lobby opens to an inner courtyard which unfolds a large plaza between the new building and the existing WIFI main building. It functions as a central meeting area that facilitates interesting opportunities of exchange.
Other meeting areas inside the building also promote exchange and informal learning.
Great emphasis was placed on an engaging mix of workshops, spaces of study and seminar rooms so that theory and practice may spontaneously mingle.
The second defining aspect of the project is to make form and function visible from inside and outside the building.
The competition jury statement says that “the proposal promises a technological dress in design perfection.”
The special character of the tede-Z is defined by distinctive V-shaped columns.
Fully exposing the construction and MEP facilities and doing without any cladding or opaque building skin not only suggests clarity and transparency, but also provides a literal object lesson for the prospective technicians and designers that will be working here.
Reduction to essentials—this principle also informed the choice of materials employed.
A thermal skin of glass provides for maximum transparency, while concrete as the primary structural construction material responds to the neighboring WIFI main building, a heritage-protected exposed-concrete construction by Karl Schwanzer.
The new building unmistakably communicates its purpose to the outside, while creating an adequate setting for ideas and projects that trainees and students will be realizing here in interdisciplinary collaboration in the future.
























