
New School In Piazza Delle Erbe
ARCHITECTS
Pfp Architekten
LOCATION
Piazza Delle Erbe, 16123 Genoa, Italy
CATEGORY
Schools
ARCHITECT IN CHARGE
Jörg Friedrich
AREA
7011.0 sqm
PROJECT YEAR
2014
PHOTOGRAPHS
Anna Positano, Andrea Bosio
Text description provided by architect.
The new school of Piazza delle Erbe is part of the Urban Renewal Programme of Porta Soprana and San Donato in the historic center of Genoa.
The school rises on the urban voids caused by the bombing which destroyed some monumental buildings and homes in the entire area between via di Porta Soprana and Mezzagalera alley.
The new building is composed of several floors and will accommodate just under 500 children of the primary and secondary school.
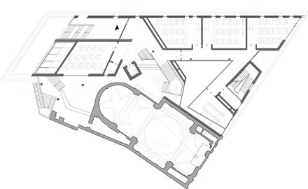
In the uppers floors are located the classrooms, whereas in the ground floor there are the secretariat, the canteen and a music room. The outdoor areas are obtained on the terrace, which opens on a breathtaking view of the city.
In phase of restoration is still the former oratory of Santa Maria del Suffragio, an eighteenth century building adjacent to the school, on whose ruins will be built the auditorium and the library.
The oratory is conceived as an integrant part of the whole complex and will create a link between the school and the territory since it will also become a space for public use.
By exploiting the topography of the lot, the school is accessible from two levels: the square and the ascent of Prione.
The school building is composed of two overlapping volumes: „broken“geometries, with a movement of the facades which also corresponds to a distribution choice and an optimization of the classrooms´s exposure.
On a base of two floors that follows the road perimeter, the remaining three floors of the building are overlapping in a game of autonomous and fragmented volumes that gives to the whole complex a dynamic and highly adaptable form.
The fluidity of the interior spaces allows a natural passage of light and a sliding and an harmonious movement of people.
The new school, was built by a program of public/private shared capital, with its clean and modern lines inserts gently a work of contemporary architecture in the delicate urban fabric of the historic center of Genoa.
The school aims to establish a fundamental reference point in the process of re-appropriation of this part of the historic city by the Genoeses.


















