The Dalmeny
SENIOR DESIGNER
Johanna Doerfel
ENGINEER
Martin Zimmerman
BUILDER
William Keeler
PHOTOGRAPHS
Brett Boardman
FURNITURE&STYLING
Kos Kela
DESIGN TEAM
William tyler zembrodt, noor elgewely, quoc uong
STEEL WORK
Steve Bain
CARPENTRY
Chris Lain Construction
ROOFING
Bullnose Roofing
LIGHTING
Enter Projects
WALL TREATMENTS
Robert Mackenzie Internal Finishes
FALL TREATMENTS
Kos Kela
Text description provided by architect.
At 7m tall and 9.5m wide, this addition to a federation period style home took only months to complete.
The abundant natural light that shines through its wide glass entrance enhances the urban chic vibe from its bright white and green interior.
The Dalmeny is made entirely with natural materials; a shack meet tech-science hybrid solution to the generic suburban environment.
An inspiration from the iconic Australian shack, with a corrugated iron exterior, The Dalmeny is nothing short of an architectural trendsetter.
Our goal was to reinterpret the old the shack/suburban house, with a fresh and stylish upgrade.
Open plan, homework on kitchen island ipads and ambient music; replace the suburban scenes of 50yrs ago of segmented rooms and dark kitchens.
Various forms of digital technology were used to conceptualize and develop the thought-provoking combination shown. The design incorporates ambient cove lighting, tracery steel work and benefits from natural heating and cooling.
As you move from the original house, a series of corrugated metal bands mold the form radiating out into the yard, giving the structure a giant accordion like appearance.
The ‘accordion’ was produced using laser-cutting machines used to create the unequal pieces meant for a boat hull.
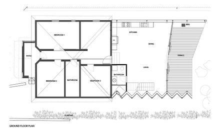
The addition extends the existing roof pitch towards the rear of the site, creating a new living area, kitchen and mezzanine level master ensuite.
The Dalmeny is a zen and more human alternative to modern box architecture, creating the feeling of stepping into a organic tech-fresh world.
The "tech-shack" is a warm and friendly upgrade any suburban house could use.



















