
City Of Hindmarsh Shire Council’s New Civic Centre
ARCHITECTS
k20 Architecture
LOCATION
Nhill VIC 3418, Australia
AREA
1295.0 sqm
PROJECT YEAR
2014
PHOTOGRAPHS
Peter Bennetts
Text description provided by architect.
FROM ARCHITECT
This technologically advanced, sustainably-focused new Civic and Administration Centre is located in the rural setting of Nhill, Victoria.
The building was inspired by the town’s identity as a hub of wheat production with steel storage silos and agricultural sheds dotting the landscape.
The precinct re-uses the existing 1960’s building and encapsulates it within its new contemporary built form.
The new centre’s form and restrained material palette of timber, steel and glass gives subtle references to the local agricultural context; utilising the craftsmanship of the folded metal inherent in the silos in the form of locally sourced steel and zinc finishes along the building’s exterior.
DESIGN INTENT
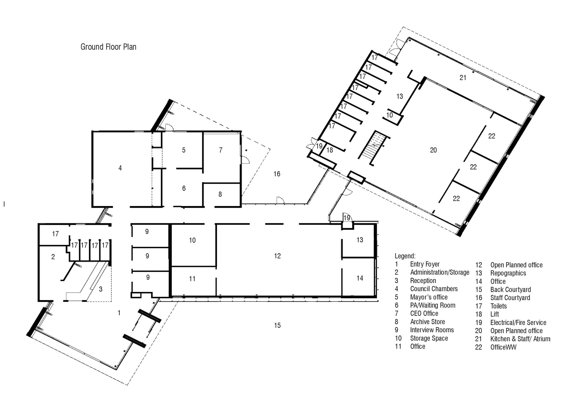
The project is the development of Hindmarsh Shire Council’s new corporate offices and Civic Centre, accommodating 70 staff with expansion capability for up to 100.
The building provides a level of environmental comfort and finish which enables employees to work in a climate of professionalism more than equal to that found in a capital city.
Hindmarsh Civic Centre also incorporates community-use facilities, multi-functional spaces, council chambers, Vic Roads services and meeting and interview rooms.
ESD INITIATIVES
With ESD principles at the core of the building’s design intent, k20 Architecture utilised a number of innovations to deliver an outcome that would not only minimise embodied energy and energy loadings within the building, but also reduce carbon output for the life of the project and provide an enhanced internal environment for its inhabitants.
Central to the system success is a custom-built glulam structure and a ventilation innovation by k20 Architecture that combines a traditional Under Floor Air Distribution (UFAD) system with a bespoke underground thermal chamber and earth pipe heat exchange system.
The process begins outside where fresh air is drawn into a series of underground thermal PVC pipes. This air then travels through the pipes and receives natural thermal treatment, heating or cooling the air from the earth before entering the building’s UFAD for further treatment.
Once the air reaches the UFAD it then travels through various insulated displacement plenums and is then distributed, at floor level, through occupant-adjustable floor grilles.
The air displacement system used for the Hindmarsh Council’s corporate offices is just one of the many sustainability measures adopted by K20 Architecture, using the Green Star rating system to inform the design.
The building also incorporates LED lighting systems throughout; 72 solar panels; recycling of over 80 per cent of the existing building’s materials; a primary structure of sustainably sourced laminated timber beams; zoned mechanical system; passive solar design, cross-flow ventilation principles and zoned motion-detection lighting.




















