ARCHITECTS
HAMAAN Studio
LEAD ARCHITECTS
Behrouz shahbazi
CONSTRUCTION
Ziba sazan inc
DESIGN ASSOCIATE
Arman Nasr Esfahani, Annahita Shadkam
MANUFACTURERS
Arg, alfam
PHOTOGRAPHS
Hossein farahani
AREA
640.0 m2
YEAR
2014
LOCATION
Isfahan, Iran
CATEGORY
Houses
Text description provided by architect.
Farvardin House is located near the historic Naqshe-Jahan Square of Isfahan, IRAN. Due to construction regulation, it had a height limitation of 9 meters to match the skyline of the neighborhood.
In order to compensate the shortage of constructible space, municipality allows contractors to exceed the regular standard of 60% construction area over to maximum 80%.
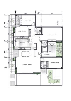
One of the main challenges in this project was reaching the capitation of green spaces, thus, the vegetation was spread out in different floors and also on the roof.
This also, led to a redefinition for the roof as a habitable open space to intenerate the skyline.

Also, because of the short distance from the southern neighborhood, the view from this side was limited.
Therefore, to fix this issue, the orientation of the view needed to be rotated from south to either east and/or west.
This, not only takes care of the limited view, but also leads the viewers’ eyes to the existing vegetation on the east and west sides.
Regarding to the mentioned challenges, the types of vegetation used in each side are chosen based on the compatibility to the criteria, defined for each side.
For example on the west side, plants are chosen to be more resistant to direct sunlight. Moreover, to make a better scene for the pedestrians who walk along this side, some types of falling plants were chosen.
On the south side, bushes were considered with an appropriate height to give a fine view of the outside for the house residents.
At the east side stairway void, which does not benefit from direct sunlight, Ivies were planted to grow vertically for increasing the visual quality of the stairways.
































