
63 Compton
ARCHITECTS
Doone silver architects
LOCATION
London, united kingdom
PROJECT YEAR
2014
PHOTOGRAPHS
Matt bargery, hurford salvi carr
Text description provided by architect.
Located in the heart of Clerkenwell in London and situated between the Hat & Feathers and Clerkenwell Green conservation areas, 63 Compton is a new 4-storey apartment building, created for Nord Development.
It replaces a 2-storey disused electrical substation and adjoins a locally listed former public house. It is designed to Code for Sustainable Homes Level 4 and includes a green roof and photo-voltaic panels.
Due to the sensitive context, early discussions with Islington Planning Authority established that any proposal for the site needed to positively respond to the volume and materials of its neighbours.
It was also important that the design enhanced the urban realm and filled the gap in the streetscape created by the receding stepped form of the substation and its separation from the adjacent building.
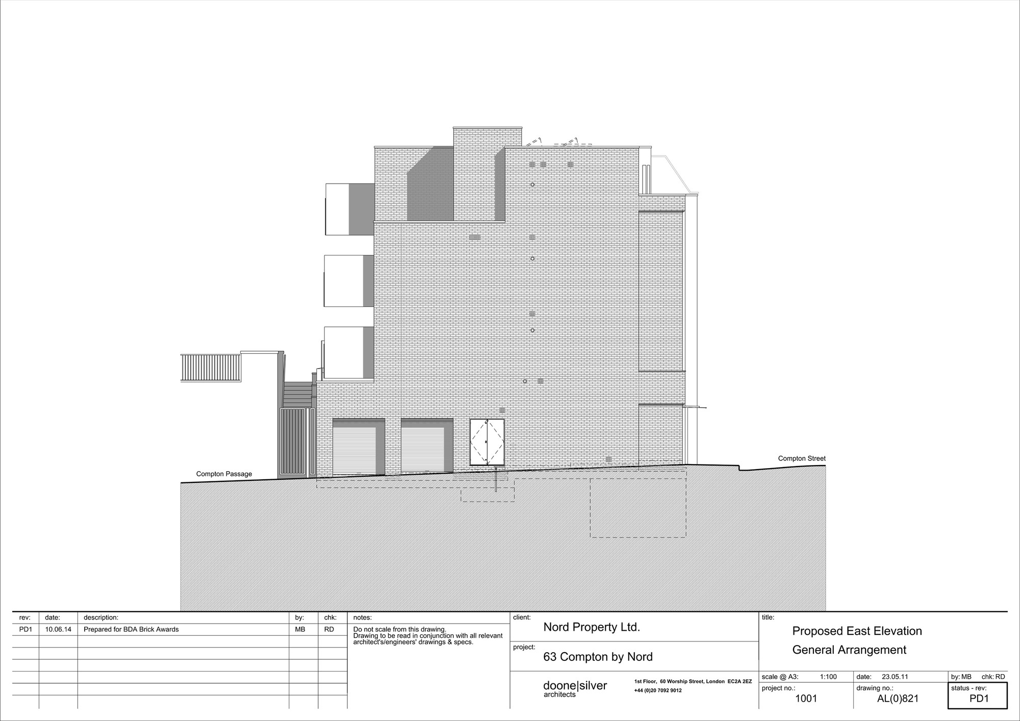
63 Compton fills the full width of the site between the former public house and Compton Passage, a narrow pedestrian route to the east, and is built hard-up to the street edge. It reads as a three storey building on the street, aligning with the adjacent building parapet.
A fourth storey is set back from the street, concealed behind the brick parapet and creating a generous terrace to the top floor apartment with views to the mature London Plane trees opposite.
At the rear the building is set back from the site boundary by two metres to create space for a ground floor terrace and large south facing balconies to the upper floor apartments.
Four generously proportioned lateral apartments are created, varying in size from 95m² to 120m² with the benefit of only one apartment per floor and with each of the upper floors having its own private lift access.
The ground level apartment utilises the 3.6m floor to soffit height and street front lower ground floor area of the former substation building to create three interconnecting levels of space.
These include a main ground floor level comprising the living room, bedroom and two bathrooms set back from the street and opening onto a terrace at the rear; a kitchen/family room at lower ground floor adjacent to the street; and a second bedroom on the street side raised by one metre to provide privacy along with a layer of translucent glazing.
The building footprint is highly efficient with a shared access stair and lift in the north east corner entered from Compton Street.
Each apartment comprises a dual aspect open plan living/dining/kitchen space, two bedrooms and two bathrooms. The second floor apartment includes a large sliding door panel in the living room to create a flexible third bedroom/study.
Within each apartment the use of an innovative domestic auto-mist sprinkler system has enabled the omission of traditional corridors and thereby provides maximum useable space. The system also allows arrival into the 18 metre long open plan living/dining/kitchen spaces directly from the private lift lobbies.
The bedrooms and bathrooms are located on the more private western side of the apartments away from the lift and stair core and are carefully configured to create flexibility in the second bedroom arrangement, which can function either with an en-suite shower room or not as desired by the residents.
The building is constructed of insitu concrete and internally this is left exposed, with its deliberately robust character contrasted with a more refined palette of solid oak floors, Calacatta Oro marble and two warm grey tones of paint applied to plasterwork and joinery.
Externally a high quality blue/red/silver glazed Janinhoff brick is used that reflects the general character of the context whilst also expressing the building as a new, crisp and contemporary contribution to the streetscape.
The blue and red colouring responds to both the surrounding red brick Victorian buildings as well as the blue engineering brick and dark blue/grey painted buildings prevalent in Clerkenwell.
The addition of silver in the colouring and the glazed finish provides a richness to the elevations, with the colours and reflectivity constantly changing with the light and weather.
The sharp edged quality of the selected brick emphasises the contemporary design of the building and, along with the use of dark grey recessed mortar joints, creates a rich and varied texture.
All three elevations of the building are important to their immediate context with all sides visible from the public realm. For this reason the Janinhoff brick is used throughout, the detailing of which is then manipulated in response to the specific location - the street; the passageway with apartment windows immediately opposite; and the rear podium level garden.
On Compton Street, the elevational composition responds to the vertical proportion of the fenestration typical in the area and deep reveals provide articulation and shadow.
The shift in scale to the large glass corner element and recessed brick plane folding around the building defines the termination of the terrace of buildings at Compton Passage.
This larger order also acknowledges the shared nature of the common stair within, which is lit through translucent glass maintaining the resident’s privacy.
The side elevation is composed as a simple, flush plane in response to the narrowness of Compton Passage.

This elevation has no windows to maintain the privacy of the residential building on the opposite side of Compton Passage and at third floor level the building volume is cut back towards the rear of the site to maintain daylight levels.
The acute angle sunlight striking the building along the passage particularly enriches the colour, texture and reflective qualities of the brickwork.
At the rear, the building is ordered with windows and doors articulated as crisp edged openings set deep into the brickwork.
The form also reads in association with applied south facing steel plate balconies that step across the elevation and which create a constantly shifting pattern of light and shadow.


















