
Warmia Thermal Baths
ARCHITECTS
Plaskowicki + partnerzy architekci
LOCATION
Lidzbark Warmiński, Poland
PROJECT YEAR
2014
AREA
14528.0 m2
CATEGORY
THERM
Text description provided by architect.
The main idea was to propose an optimal unit of Thermal Baths, harmoniously composed into the surroundings of the Lidzbark Warmiński region.
The “atmosphere" of the facility and the ergonomics adapted to all age groups of users was one of the main goals of the project.
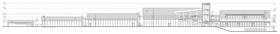
The shape of the building was divided into elements adjusted to the needs of the functional zones located in them.
The whole complex is opened to the charm of the surrounding area through glazing of the individual blocks.
Every "chamber" is finished with materials characteristic for the Warmia and Mazury region.
The main entrance of the building is a glass joint where the main hall divides the complex into three parts: the main part with a swimming pool and thermal baths, the second part with conference halls and a restaurant and the third part where a hotel is located.
The hotel was designed in the shape of the terrace houses located on the natural slope of the area.
In this part there are also changing rooms, a shopping-mall, toilets and a restaurant with kitchen facilities. On the level -1 there is a club room with a bar, a bowling and music club.
In additional, on the level -1, there is a car park with 33 parking spaces, a social area for employees and technological rooms.




























