
Ganei Shapira Affordable Housing
ARCHITECTS
Orit Muhlbauer Eyal Architects
LEAD ARCHITECTURE
Hila Berger, Shay Naim
CONTRACTOR
Shalom and Natan
MAIN SUPPLIER
Layish Metal Industries Ltd
CLIENT
Tel Aviv Municipality, Rivka Farhi, Udi Carmeli, Orit Ben Asa
PROJECT MANAGEMENT
Ezra And Btzharon, Eli Ginzberg, Maskit Peer, Monica Milonchick
MANAGEMENT AND SUPERVISION
Massad Oz Managment And Supervision Ltd, Matan Tarshish, Ofir Lender, David Bar-ishai
YEAR
2014
LOCATION
Tel Aviv, Israel
CATEGORY
Apartments
Text description provided by architect.
The “Ganei Shapira” project was built on a 1 Acre plot, owned by the Tel Aviv municipality. It is located between Tueri Zahav Street and De Modina Street.
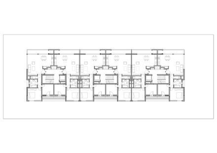
The project encompasses 69 apartments which will be available for rent under the Affordable Housing scheme. 42 apt are 3 bed room apt.(around 80 sq/m), 27 apt are 4-5 bedroom apt (90-120 sq./m).
In planning the project, a special emphasis was given to the open communal spaces and to the neighborhood's green spaces.
We examined several planning alternatives for the project. The chosen plan has the highest potential to enable the community to evolve as a real collegial neighborhood, in the spirit of old times a kind of an "Urban Kibbutz".
The centre of the project is the communal space in the middle which serves as a passage through the project to the park and as the entrance area to the buildings.
The space also serves as a natural continuation to and from the green spaces through which the residents can reach De Modina Garden.
This architectural design is a modern interpretation of the “Shikun” residential housing projects that were built during the years of the massive immigration to Israel (1950-1960). However, unlike the old neighborhoods, the Shapira housing project benefit from high building standards.
This project presents a truly unique opportunity whereby the Tel Aviv municipality provides a substantial plot for the benefit of the community.
This project highly benefit the Shapira neighborhood by attracting middle class families to the area, and will also serve as a valid and compelling response by the authorities to the demands of the middle classe from the “Rothchild protest” last summer.
It is important that such an opportunity be properly used, both for affordable housing for the middle class and as lever of urban and population renewal of the Shapira area.
















