
The Porter School of Environmental Studies
THE PORTER SCHOOL OF ENVIRONMENTAL STUDIES
Geotectura Studio + Chen Architects + Axelrod Grobman Architects
CATEGORY
University
LOCATION
Tel Aviv, Israel
ARCHITECTS
Axelrod Grobman Architects, Chen Architects, Geotectura Studio
PROJECT YEAR
2014
PHOTOGRPHS
Shai Epstein
MANAGMENT
The Baran Group LTD
CONTRACTOR
Shitufit LTD
Text description provided by architect.
The PSES Building – the green new home of the Porter School of Environmental Studies (PSES) – was designed to deliver Israel's first LEED Platinum certified building. Incorporating advanced environmental technologies for energy and water efficiency, it will be the first green building on the Tel Aviv University campus.
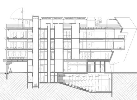
The PSES Building will incorporate classrooms; halls; offices; an atrium offering open space for exhibitions; an auditorium; a garden with constructed biological wetlands to treat and recycle greywater; a green roof; and a cafeteria.
The pleasant, inviting internal spaces will function as meeting places for students and researchers, as well as government officials, industry representatives and members of environmental organizations, involved in the school's activities.
In addition to its academic functions as home of the Porter School, the PSES Building will be accessible to the public and offer a broad educational platform, addressing varied aspects of green building and environmental research. Visitors will be introduced to the operation of the environmental systems installed in the PSES Building.
Including solar and thermal energy based air conditioning, advanced bioclimatic ('passive planning') technologies, and measurement & control systems.
Environmental displays along the Science Promenade, stretching between the building and the university train station, will serve as a prelude to the tour of the building itself.
The Porter School of Environmental Studies (PSES) Building was intended by design and functionality to be a unique 'living laboratory': a publically accessible educational platform for green building and environmental research, exposing users and visitors to the advanced environmental technologies installed in it.
More than a mere home for the school's activities, the PSES Building features a large auditorium and a spacious atrium as a central space for meetings and exhibitions, in addition to its classrooms, lecture halls, researcher offices, meeting rooms and offices.
The building incorporates unique architectural elements such as the EcoWall and the Capsule in its southern façade. This front, facing the Ayalon Highway, is an exposure of the building to passersby, and can serve as an educational and communicational tool.
The building incorporates unique architectural elements such as the EcoWall and the Capsule in its southern façade. This front, facing the Ayalon Highway, is an exposure of the building to passersby, and can serve as an educational and communicational tool.
The PSES Building is connected to the nearby train station via the Science Promenade, a pleasant and safe walking and biking path along the slope, with teaching exhibitions on environmental issues stationed on its route.
A laboratories building dedicated to environmental research and technologies is planned for construction adjacent to the PSES Building, on the cliff front underneath the promenade.










































