
House N By Israel Nottes Architects
CATEGORY
House
LOCATION
Caesarea, Israel
AREA
350.0 sqm
ARCHITECTS
Israel Nottes Architects
PROJECT YEAR
2014
Text description provided by architect.
In the vicinity of the old roman city of Caesarea in Israel, The plot of the house is located alongside Israel's biggest golf course and just minutes walk from the sea side and the ruins of the old roman city.
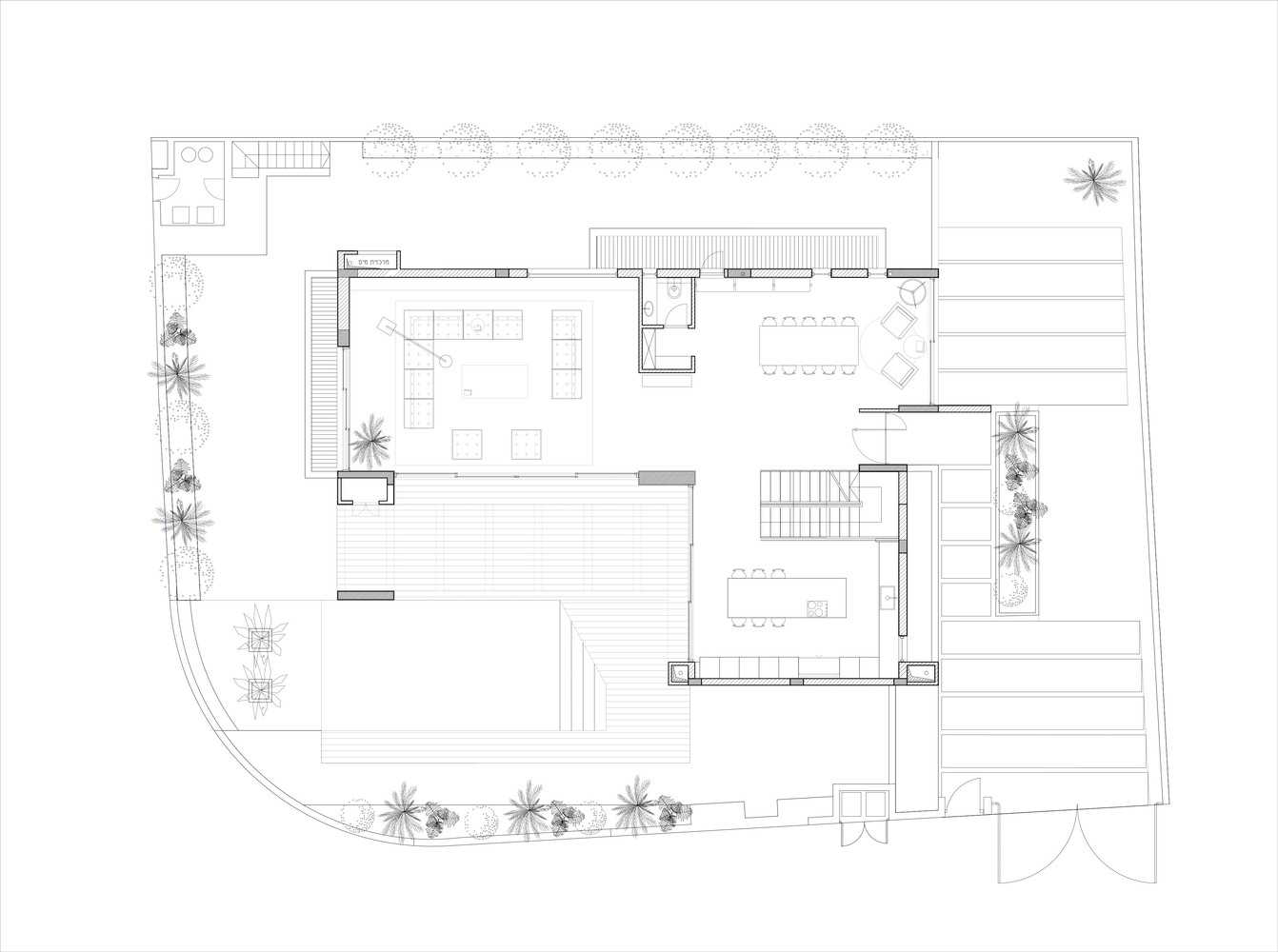
The design of the house was centered around 2 main points, the first being the pool as the main focal point.
This notion led to an L shape plan that permits a design of a big open space on the ground floor hosting the main functions of the house yet with a distinct hierarchy and a clear view and access to the pool.
By positioning the house facing the south-west side we were able to enjoy long hours of direct natural sun light as well as natural ventilation of wind form the sea.
The big windows along the south side allow ray of light to enter the house and naturally heat it in the winter, whereas during the summer when it is very hot, the concrete pergola blocks the sun from entering the house and over heating it.
The color scheme for the house was inspired and derived from the Spur-winged lapwing bird, one of Israel's most common and elegant birds.
The Brown, grey, black and white pallet was used in every room of the house with different ratio and combination. Each color assigned with a specific material: wood, concrete, metal and stucco.
Enclosed between two sides of the house and in clear view, a pool was designed consisted of two parts that fade into each other, one is a deep area designed for swimming and the second is a long shallow extension of the pool turns to a waterfall as part of the house's exterior fence.
Located in the center of it are two concrete cast pots for water plants to grow and provide shade and comfort from the sun.
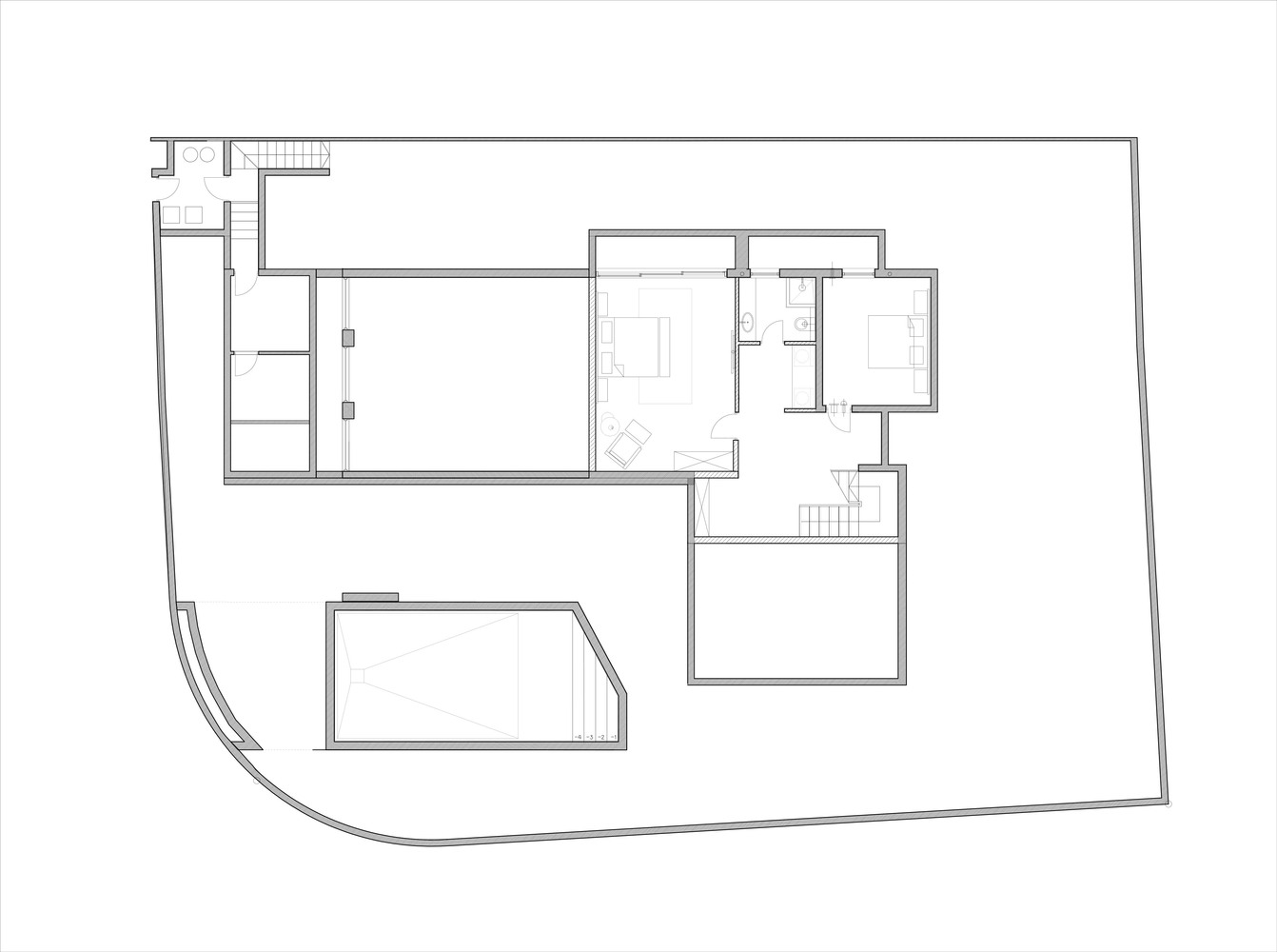
A concrete staircase with a lightning section shape Divides the kitchen and the dining area, covered with natural oak wood with glass and black metal frame hand rails it connects all three floors. The dining area has an access to a private garden paved with long concrete tiles and a view of nearby park and a Koi-fish natural pond.

















